ArchitizerA+Awards已公开宣布2022年第10届的获奖者。通过其影响力平台——A+Awards向全球超过400万观众表彰了这些富有远见的项目。A+Awards拥有250多名由不同领域的设计专业人士组成的评审团,包含了全球著名设计公司负责人在内的许多杰出人物,同时包括来自时尚、出版、产品设计、房地产开发和科技等其他专业领域的专家。选择标准基于参评作品的功能和美学品质,以及作品的创新性和潜在影响力。历届获奖的公司包含ZahaHadid Architects、Heatherwick Studio、MAD Architects、Studio Gang等。本次A+Awards中“医院和医疗中心”类别有6个项目,加州大学旧金山分校琼和桑福德·艾·威尔神经科学大楼是其中之一。

UCSF Joan & Sanford I. Weill神经科学大楼的主入口正对着街对面的Koret Quad 图片©Tim Griffith
走进这里,人们首先注意到的是光线:一个带天窗、六层楼高的中央中庭,沐浴着阳光的患者治疗室,一排排采光良好的实验室长凳,以及一个面向日落的宽阔屋顶露台。位于加州大学旧金山分校使命湾(Mission Bay)校区的琼和桑福德·艾·威尔(Joan and Sanford I. Weill)神经科学大楼占地28.3万平方英尺,即使以加州的标准来看,它对光线的追求也是疯狂的。对于这个融合了神经科学和精神病学的研究和治疗的非典型设施,史密斯设计集团(SmithGroup)和马克·卡瓦涅罗联合设计公司(Mark Cavagnero Associates (MCA))设计采取了一种非常规的方法,无视无菌的机构先例,转而支持更自然的环境。设计建筑师马克·卡瓦格内罗(Mark Cavagnero)说:“我试图用光来设计,而不是用钢或混凝土,其他一切都是次要的。”

社交区域和露台占据了上层的中心。图片©Tim Griffith
日光是卡瓦格内罗将结构组织成双向平板结构的的主要原因。主要的西侧入口面对着加州大学旧金山分校中心的Koret Quad公园。在MCA团队的鼓励下,公园东侧入口对面的一排茂密的树木被移除,让建筑师能够利用更多的阳光和庭院的景观。他们在建筑的西端建立了开放的露台、社交空间、候诊室和输液室——患者可以在这里接受几个小时的治疗——并将工作空间设在建筑的南北玻璃区域。东侧覆盖着金属板,有几扇小窗户,面对着停车场,旁边是Snøhetta设计的Chase Center竞技场,容纳了机械室、流通和其他不太依赖自然光线的空间。
北、南和西立面使这一策略得以实现,在两个较低的诊所层有一个嵌入式玻璃幕墙,并在四个上部研究楼层定义了一系列白色铝制百叶窗。这些固定的遮阳设备在一天的过程中激活玻璃立面,因为太阳不断变化的光和影的模式洗礼着这一切。与此同时,他们保持日光照明的室内(辅以LED任务装置和带有占用传感器和手动调节的头顶灯具)向远处的远景开放,阻挡眩光,在夏季几乎不需要遮阳。它们还能减少建筑的热负荷,使玻璃上的低辐射涂层更轻。威尔大厅最近获得了LEED金级认证,高于加州大学要求的LEED银级认证。

朝北的百叶开口软化了建筑的体量,并允许视线进入 图片©Tim Griffith
百叶的设计使用了虚拟现实模拟以及四分之一比例和全尺寸模型,需要解决使命湾阳光和风的问题,附加在幕墙结构上,并投影到距离玻璃足够远的地方,以便让窗户视线清晰。作为一个额外的好处,这种投影给大学规定的75平方英尺周边办公室的居住者留下了拥有更大空间的印象。MCA高级合伙人保罗•戴维森解释说,这些通常与共享空间相吻合,比如等候区和开放式办公室,这些地方没有靠近玻璃的座位。他补充说,从环境上看,这些开口与邻近建筑的飘窗相呼应,有助于软化建筑的体量,同时让行人可以看到建筑内部。研究表明,相邻的布道厅将有助于保护南立面免受热量增加和眩光的影响,“人们对更大的开口感到舒适,允许更多的日光进入,并允许更大的透明度,”他说。

有天窗的中庭以梧桐树和橡树铺装 图片©Kyle Jeffers
对于卡瓦格内罗来说,日光是自然的抽象或表征,他认为这对居住者的福祉至关重要。室内材料的调色板——梧桐木饰面墙板、橡木地板、灰色阔幅地毯,以及橄榄绿、石板蓝和深棕色家具的混合——有意地比人们在一个机构建筑中所期望的更自然,甚至更具有居住感。建筑师对这个方案也是出自个人经历的表达。在他开始这个项目的时候,他的母亲被诊断出患有痴呆症——这种疾病将在威尔霍尔进行研究——他希望这个设施能让像她这样的患者平静下来,而不是让人感到复杂和困惑。“她对这个空间的喜爱必须是自然而然的。不会是愚蠢的混凝土!”他说道。“她可以走进来然后说,‘这很舒服,这是美丽的’。”

阳光充足的空间包括入口处的诊所候诊室 图片©Kyle Jeffers

三楼的输液室 图片©Kyle Jeffers

六楼的会议室 图片©Tim Griffith

“城镇中心”图片©Kyle Jeffers
MCA同样关心神经学家和精神病学医生,他们将在这里工作很长时间。戴维森指出,该公司的意图是“创造一个与自然相连的良好环境,因为这最终是他们正在研究的。”然而,这座建筑的美学并不意味着原始或未经提炼。卡瓦内罗说:“我们努力研究每件作品是如何组装、连接和制作的。”“科学家们喜欢建筑的精确度。”这种精确度来自于实验室工作台本身,它们之间有一个标准的10英尺6英寸的间距。从柱网和墙板的宽度到百叶之间7英寸的间距,整个结构都使用了这种测量和划分。

从西边俯瞰Koret Quad,五层的一个舒适露台被上方一个更广阔的露台所遮蔽 图片©Kyle Jeffers
尽管建筑的组织形式和色彩设计都很简单,这座建筑并没有被设计成消失在周围的环境中。它位于加州大学旧金山分校使命湾校区的中心位置,与里卡多·莱格雷塔(Ricardo Legorreta)宏伟的威廉·j.拉特中心(William J. Rutter center)隔着科瑞特方庭(Koret Quad),建筑注定成为视线的焦点。它的玻璃和百叶立面与校园里许多石灰华覆盖的建筑明显不同。这不仅为居住者带来了日光,也使建筑在晚上发光——这是研究人员在研究他们的下一个突破时的活动灯塔。卡瓦格内罗说,该校明白,独特的建筑可以通过提供不同于其他建筑的环境来吸引科学家。加州大学旧金山分校威尔神经科学研究所主任斯蒂芬·豪瑟博士说:“建筑必须是一个散发希望的地方——发光的地方。”

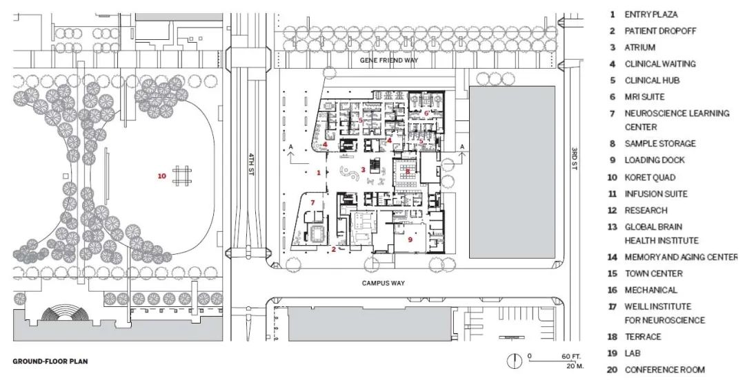
平面图
项目信息
建筑设计:Mark Cavagnero Associates — Mark Cavagnero, design principal; Kang Kiang, principal in charge; Paul Davison, project director; Federica Carrara, lead interior designer; Joan Young Park, senior architect
合作设计:SmithGroup – Suzanne Napier, architect of record; Jon Riddle, project manager; Robert Colyer, project architect; Sally Whiteley, clinical planner; Alex Munoz, Lab Planner
工程师:Degenkolb (structural); Critchfield Mechanical (mechanical); Freyer and Laureta (civil); Walters & Wolf (facade)
总承包商:DPR
咨询顾问:Jacobs Lab Planning Group (lab programmer); Loisos + Ubbelohde (lighting); Atelier 10 (sustainability); Arup (acoustics/vibrations/code); CPP (wind engineering); Office of Cheryl Barton (landscape)
业主:加州大学旧金山分校
面积:283,000平方英尺
完工时间:2021年6月

>

