筑医台科技有限公司

搜索
CHCC2026
筑医台资讯微信公众号
筑医台
微信扫一扫,获取更多资讯
封面图

城院织补 · 和而共生:山东大学齐鲁医院急诊综合楼(国家区域医疗中心)

建筑设计 2025/10/23 16:57
齐鲁医院急诊综合楼以低矮谦逊的姿态,犹如两个山谷,创造出一个治愈花园。未来伴随城市更新和人口结构的变化,齐鲁医院作为区域医疗中心,医疗综合体的内部必将处于灵活动态的改建过程中,新建的急诊综合楼在满足医疗需求的基础上,以开放和谐的姿态融入城市公共生活。

设计师孟建民、邢立华、符永贤、余妙玲、刘瑞平、汤进顺、李静、黄章恩、郑晓慧、陈颖航、高文安、苏伟东等

设计院深圳市建筑设计研究总院有限公司—本原医疗建筑设计研究院设计团队&山东省建筑设计研究院有限公司设计三院

建设地点:山东省济南市

用地面积:23865.14m2

建筑面积:187002.00m2

床位数:800床

封面图
  • 急诊综合楼鸟瞰©方方的田
    急诊综合楼鸟瞰©方方的田
  • 俯视©方方的田
    俯视©方方的田
  • 夜景©方方的田
    夜景©方方的田
  • 人视角©方方的田
    人视角©方方的田
  • 人视角©方方的田
    人视角©方方的田
  • 主入口夜景©方方的田
    主入口夜景©方方的田
  • 城市客厅©方方的田
    城市客厅©方方的田
  • 屋顶花园细部©方方的田
    屋顶花园细部©方方的田
  • 细部©方方的田
    细部©方方的田
  • 内庭院©方方的田
    内庭院©方方的田
  • 室内©方方的田
    室内©方方的田
  • 总平面©本原医疗建筑设计研究院
    总平面©本原医疗建筑设计研究院
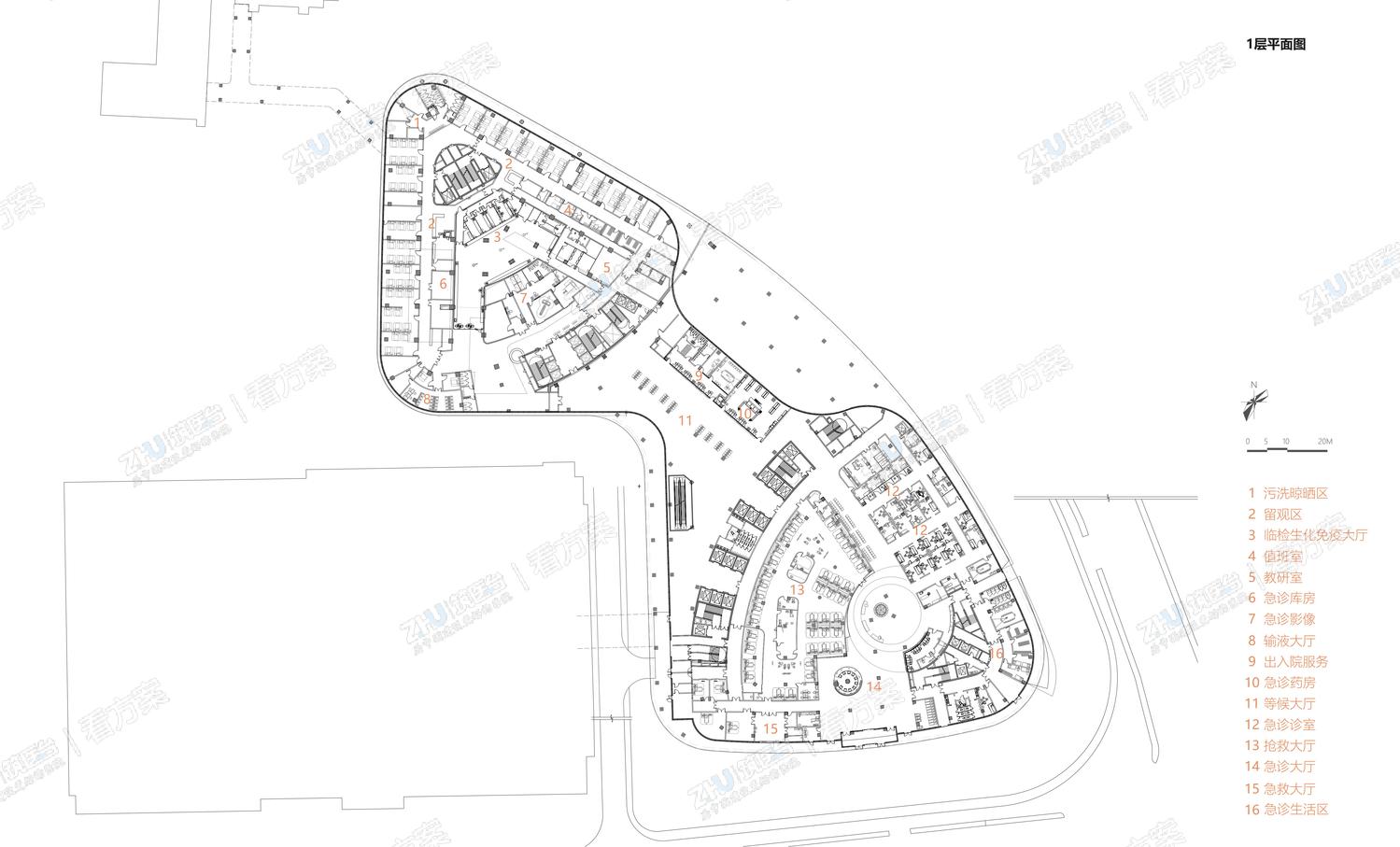
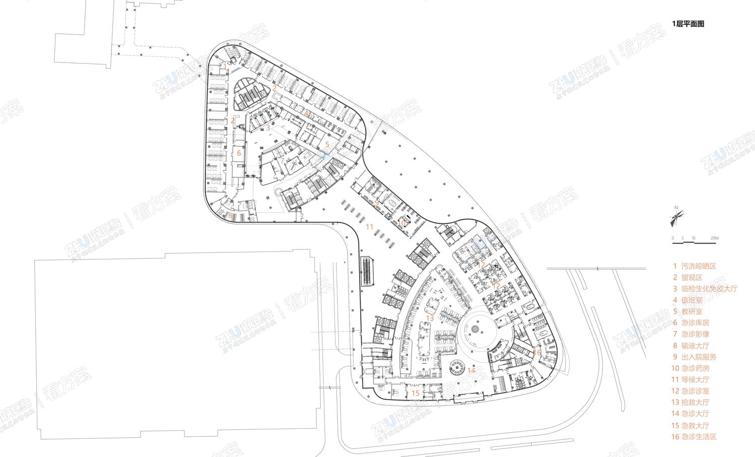
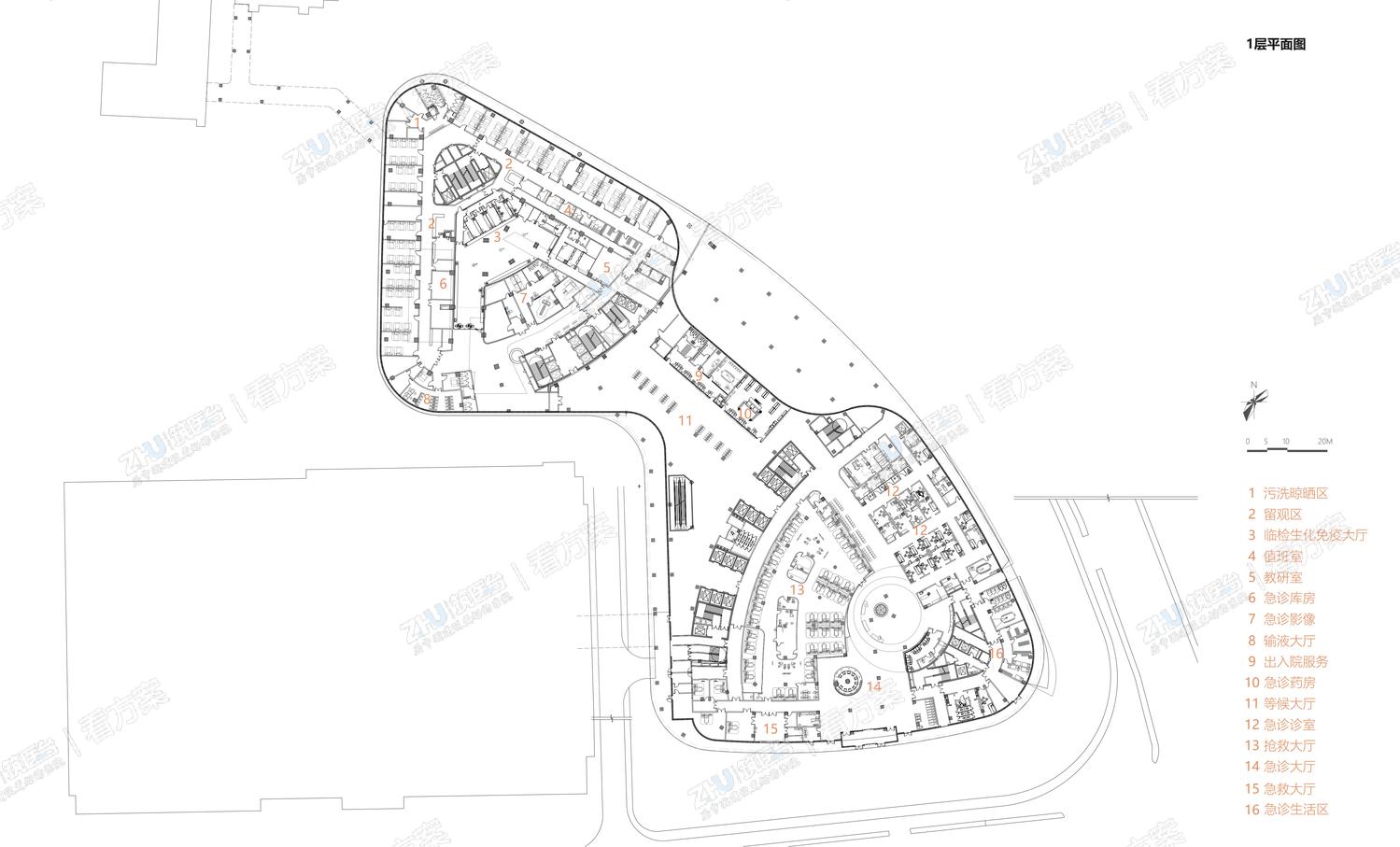
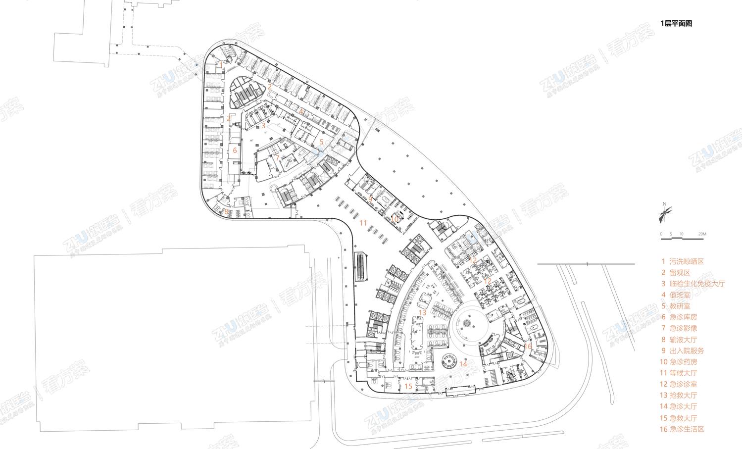
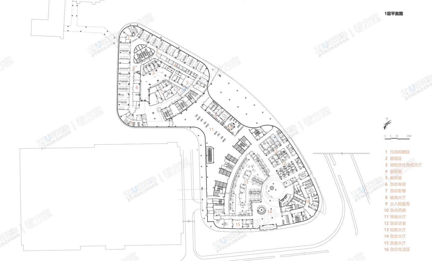
  • 1层平面图©本原医疗建筑设计研究院
    1层平面图©本原医疗建筑设计研究院
  • 剖面图©本原医疗建筑设计研究院
    剖面图©本原医疗建筑设计研究院