• 城院织补 · 和而共生:山东大学齐鲁医院急诊综合楼(国家区域医疗中心)

    2025/10/23 15:57
    急诊综合楼鸟瞰©方方的田
  • 城院织补 · 和而共生:山东大学齐鲁医院急诊综合楼(国家区域医疗中心)

    2025/10/23 15:58
    俯视©方方的田
  • 城院织补 · 和而共生:山东大学齐鲁医院急诊综合楼(国家区域医疗中心)

    2025/10/23 15:58
    夜景©方方的田
  • 城院织补 · 和而共生:山东大学齐鲁医院急诊综合楼(国家区域医疗中心)

    2025/10/23 16:25
    人视角©方方的田
  • 城院织补 · 和而共生:山东大学齐鲁医院急诊综合楼(国家区域医疗中心)

    2025/10/23 15:58
    人视角©方方的田
  • 城院织补 · 和而共生:山东大学齐鲁医院急诊综合楼(国家区域医疗中心)

    2025/10/23 16:13
    主入口夜景©方方的田
  • 城院织补 · 和而共生:山东大学齐鲁医院急诊综合楼(国家区域医疗中心)

    2025/10/23 16:28
    城市客厅©方方的田
  • 城院织补 · 和而共生:山东大学齐鲁医院急诊综合楼(国家区域医疗中心)

    2025/10/23 16:28
    屋顶花园细部©方方的田
  • 城院织补 · 和而共生:山东大学齐鲁医院急诊综合楼(国家区域医疗中心)

    2025/10/23 16:13
    细部©方方的田
  • 城院织补 · 和而共生:山东大学齐鲁医院急诊综合楼(国家区域医疗中心)

    2025/10/23 16:13
    内庭院©方方的田
  • 城院织补 · 和而共生:山东大学齐鲁医院急诊综合楼(国家区域医疗中心)

    2025/10/23 15:58
    室内©方方的田
  • 城院织补 · 和而共生:山东大学齐鲁医院急诊综合楼(国家区域医疗中心)

    2025/10/23 16:22
    总平面©本原医疗建筑设计研究院
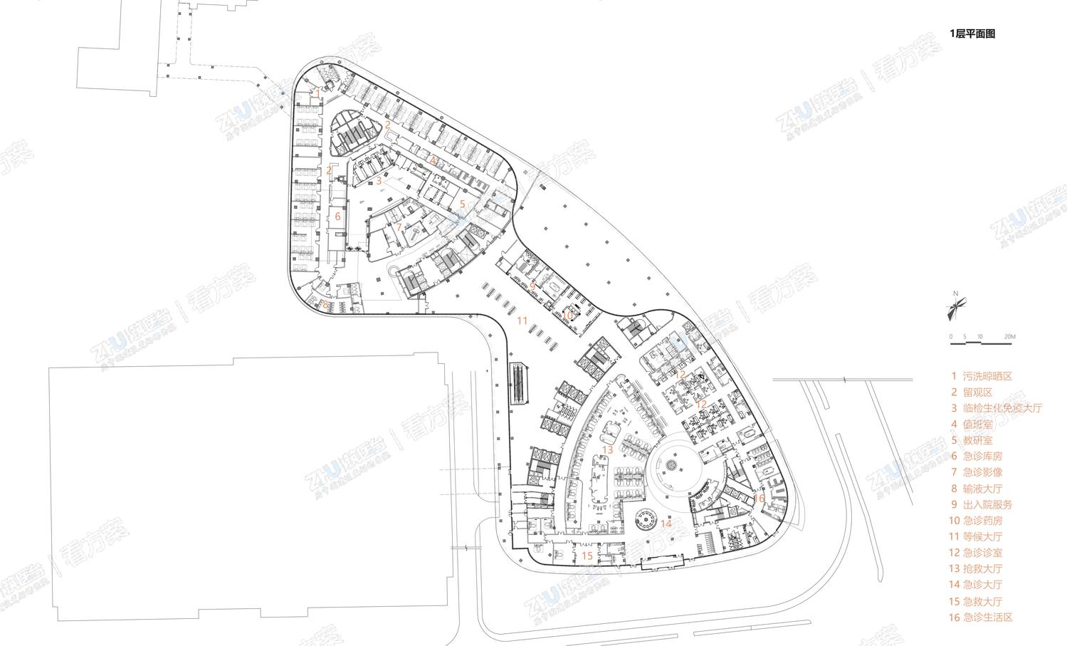
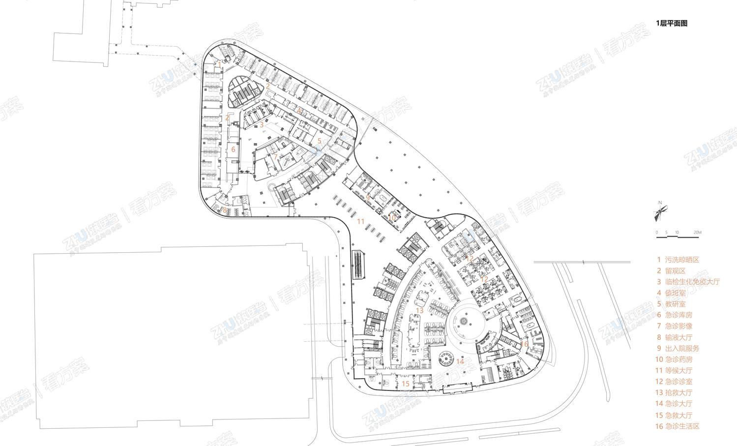
  • 城院织补 · 和而共生:山东大学齐鲁医院急诊综合楼(国家区域医疗中心)

    2025/10/23 16:14
    1层平面图©本原医疗建筑设计研究院
  • 城院织补 · 和而共生:山东大学齐鲁医院急诊综合楼(国家区域医疗中心)

    2025/10/23 16:14
    剖面图©本原医疗建筑设计研究院
80%
1/1