筑医台科技有限公司

搜索
CHCC2026
筑医台资讯微信公众号
筑医台
微信扫一扫,获取更多资讯
封面图

丛台之上,古今共融: 邯郸市中西医结合医院北湖院区建设项目

建筑设计 2025/07/22 14:40
邯郸市中西医结合医院北湖院区建设项目发展定位为以中西医结合为特色,以肿瘤防治、心脑血管病为专科,集康复医学、老年医养、急诊急救为一体的“强专科、大综合”三级甲等中西医结合医院。

设计师谷建、杨尚庄、齐琪、王宇、王伟、周旭然

设计院睿谷设计(中衡设计集团医疗设计研究中心)

建设地点:河北省邯郸市

用地面积:57136.8m2

建筑面积:173000m2

床位数:1000床

封面图
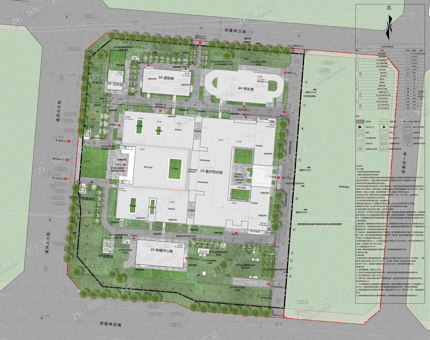
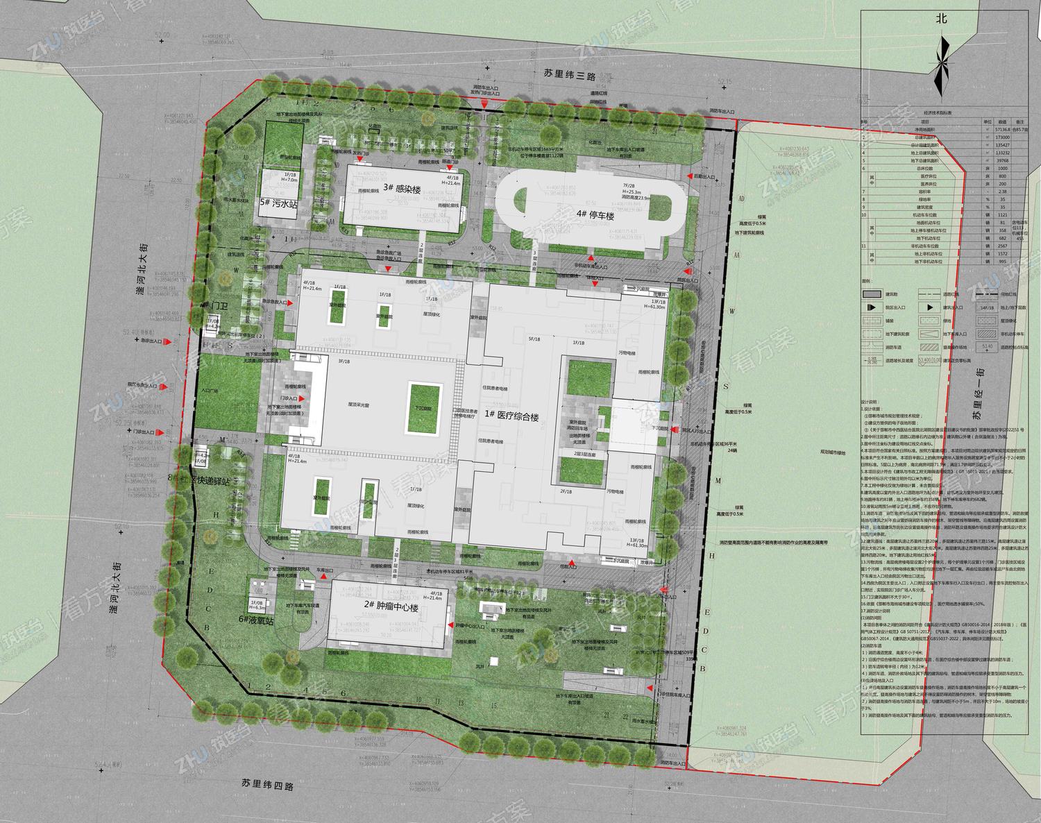
  • 总平面图
    总平面图
  • 西南鸟瞰效果图
    西南鸟瞰效果图
  • 东南鸟瞰效果图
    东南鸟瞰效果图
  • 东南鸟瞰夜景效果图
    东南鸟瞰夜景效果图
  • 南侧主入口效果图
    南侧主入口效果图
  • 西侧主入口效果图
    西侧主入口效果图
  • 门诊大厅
    门诊大厅
  • 门诊大厅
    门诊大厅
  • 地下接驳厅
    地下接驳厅
  • 医疗主街
    医疗主街
  • 国医堂
    国医堂
  • 国医堂
    国医堂
  • 餐厅
    餐厅