• 丛台之上,古今共融: 邯郸市中西医结合医院北湖院区建设项目

    2025/07/22 11:41
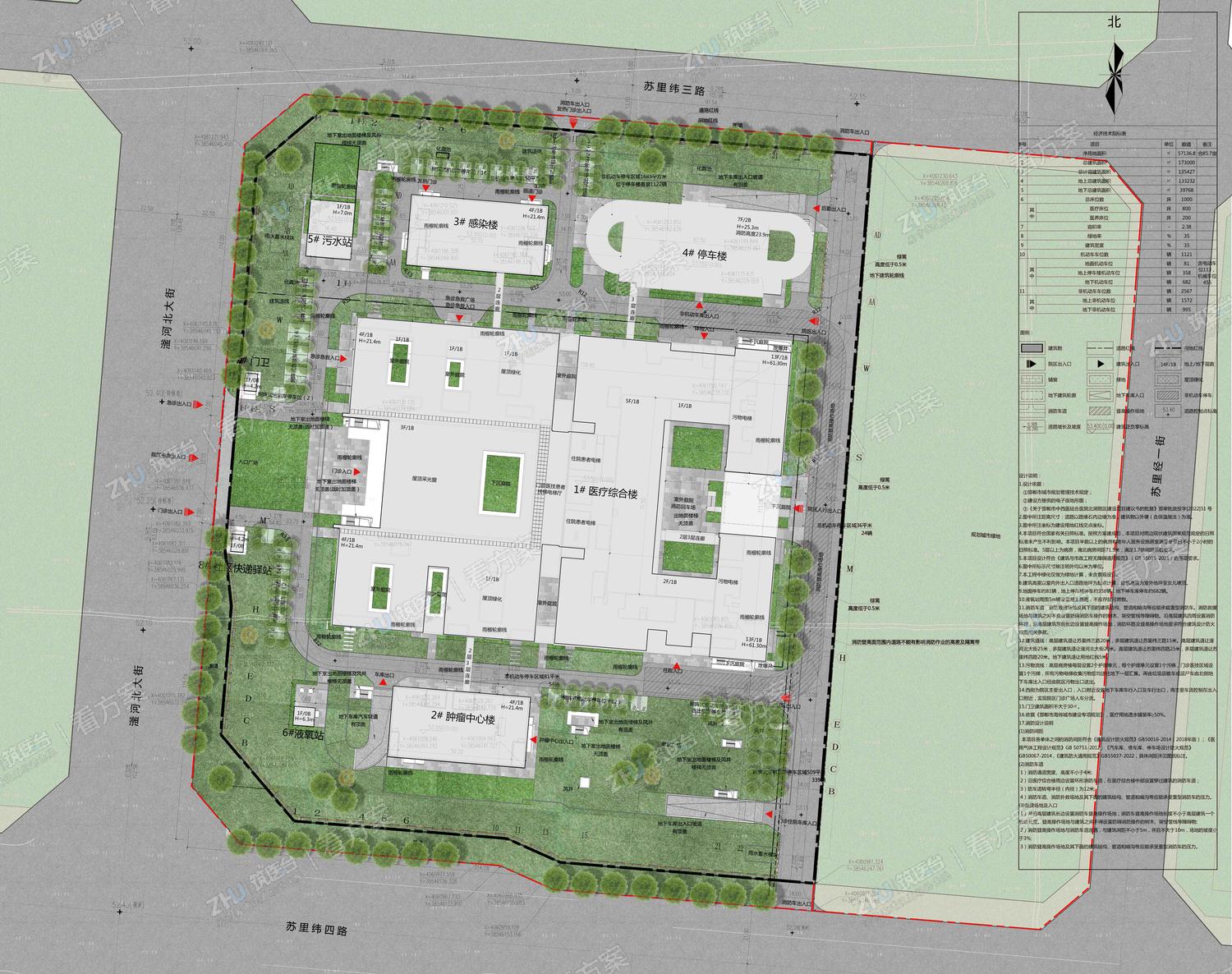
    总平面图
  • 丛台之上,古今共融: 邯郸市中西医结合医院北湖院区建设项目

    2025/07/22 11:42
    西南鸟瞰效果图
  • 丛台之上,古今共融: 邯郸市中西医结合医院北湖院区建设项目

    2025/07/22 11:42
    东南鸟瞰效果图
  • 丛台之上,古今共融: 邯郸市中西医结合医院北湖院区建设项目

    2025/07/22 11:42
    东南鸟瞰夜景效果图
  • 丛台之上,古今共融: 邯郸市中西医结合医院北湖院区建设项目

    2025/07/22 13:14
    南侧主入口效果图
  • 丛台之上,古今共融: 邯郸市中西医结合医院北湖院区建设项目

    2025/07/22 13:14
    西侧主入口效果图
  • 丛台之上,古今共融: 邯郸市中西医结合医院北湖院区建设项目

    2025/07/22 13:15
    门诊大厅
  • 丛台之上,古今共融: 邯郸市中西医结合医院北湖院区建设项目

    2025/07/22 13:15
    门诊大厅
  • 丛台之上,古今共融: 邯郸市中西医结合医院北湖院区建设项目

    2025/07/22 13:15
    地下接驳厅
  • 丛台之上,古今共融: 邯郸市中西医结合医院北湖院区建设项目

    2025/07/22 13:15
    医疗主街
  • 丛台之上,古今共融: 邯郸市中西医结合医院北湖院区建设项目

    2025/07/22 13:15
    国医堂
  • 丛台之上,古今共融: 邯郸市中西医结合医院北湖院区建设项目

    2025/07/22 13:15
    国医堂
  • 丛台之上,古今共融: 邯郸市中西医结合医院北湖院区建设项目

    2025/07/22 13:15
    餐厅
80%
1/1