筑医台科技有限公司

搜索
CHCC2026
筑医台资讯微信公众号
筑医台
微信扫一扫,获取更多资讯
封面图

山西省中医院东山院区项目——推动国家中医药发展的“双核引擎”

建筑设计 2025/04/21 16:14
山西省中医院东山院区项目包括山西省中医院国家中医疫病防治基地项目和山西省中医院国家中医药传承创新中心项目,两个项目的建设,对提升山西省中医疫病防治能力,推动中医药传承创新发展,助力打造中医药强省,具有极其关键的支撑与引领作用。

设计师李泽晋、弓力强、孙雪晶等

设计院山西省建筑设计研究院有限公司

建设地点:山西省太原市迎泽区南十方街70号

用地面积:13513.33m2

建筑面积:65800m2

床位数:300床

封面图
  • 项目鸟瞰效果图
    项目鸟瞰效果图
  • 总平面图
    总平面图
  • 效果图
    效果图
  • 
                            
                        
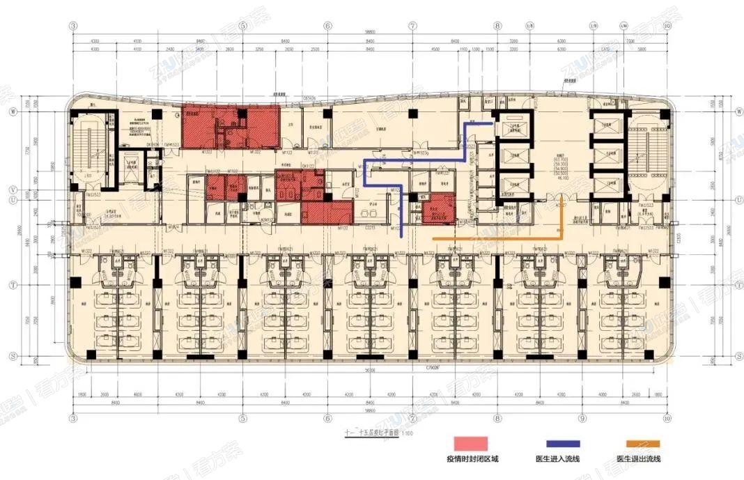
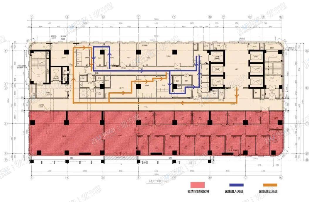
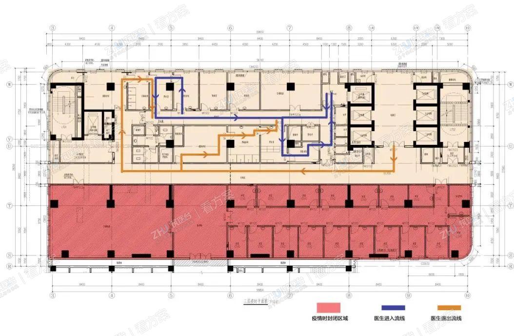
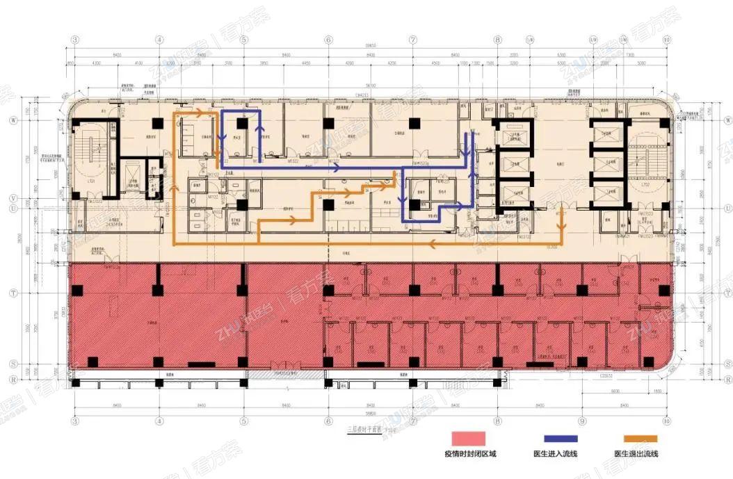
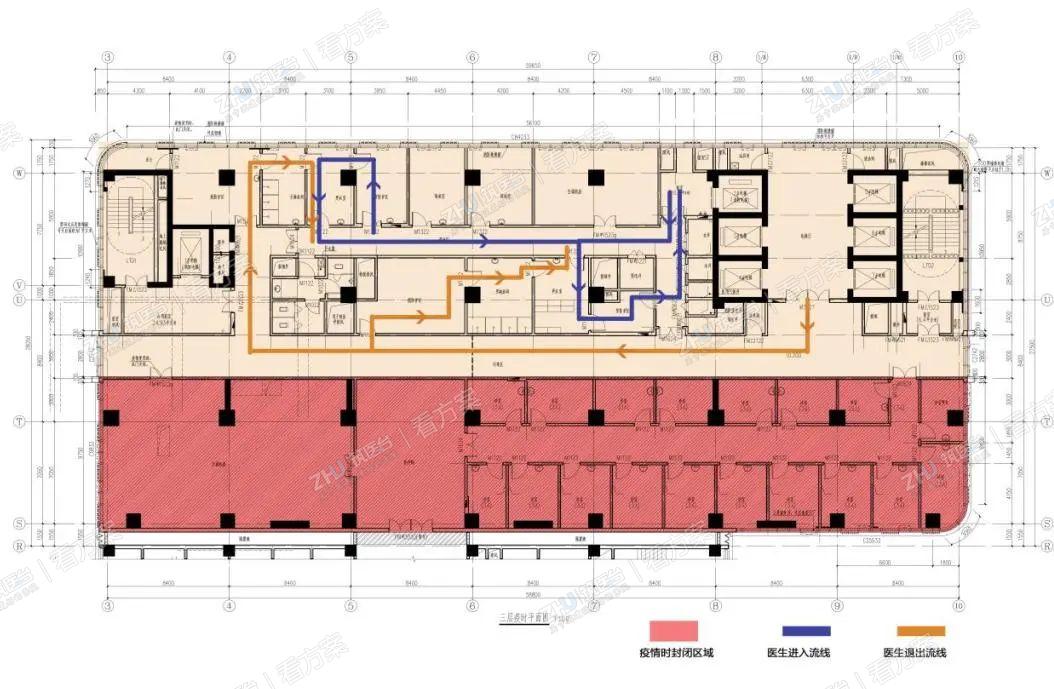
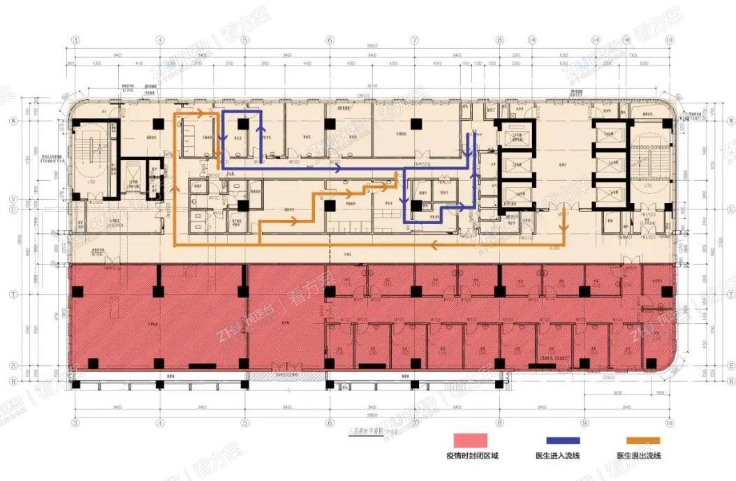
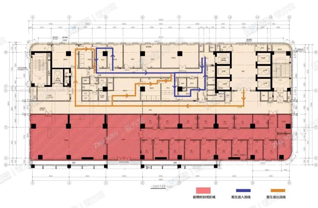
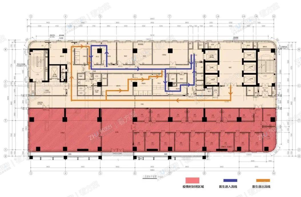
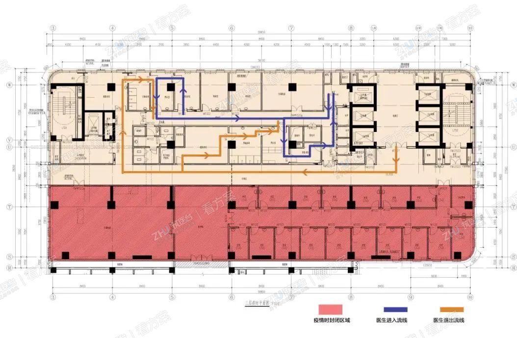
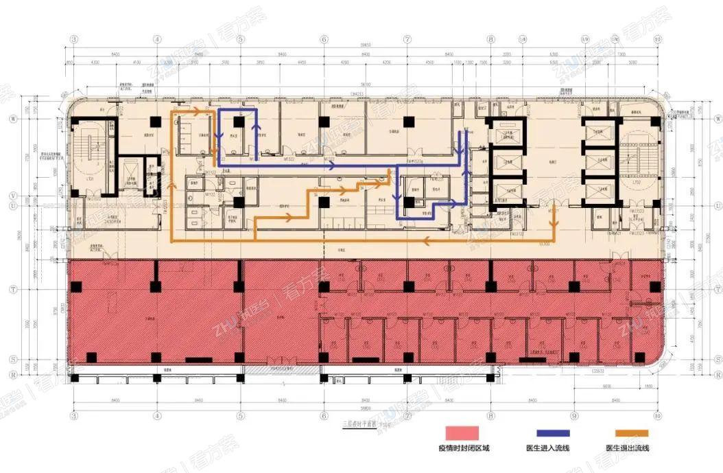
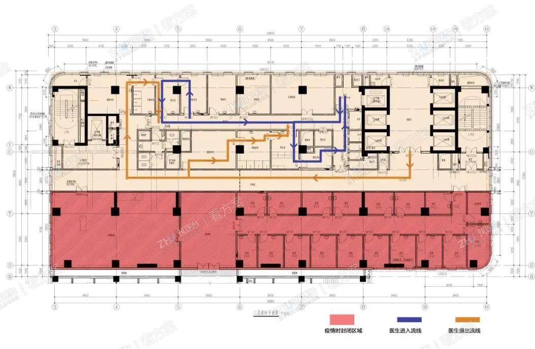
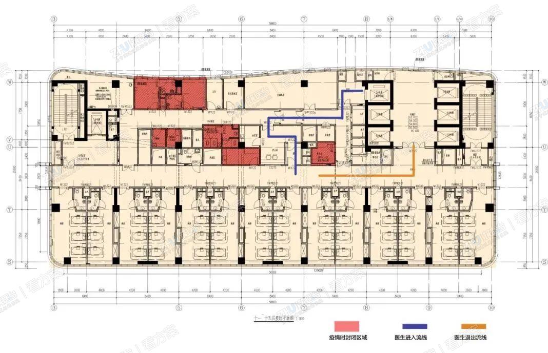
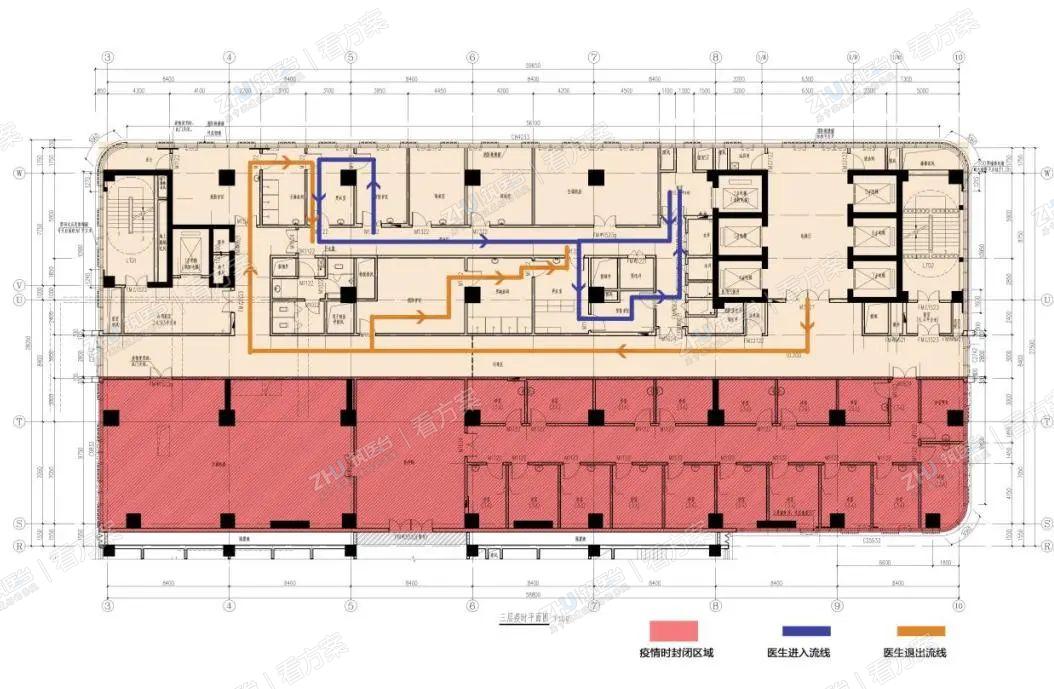
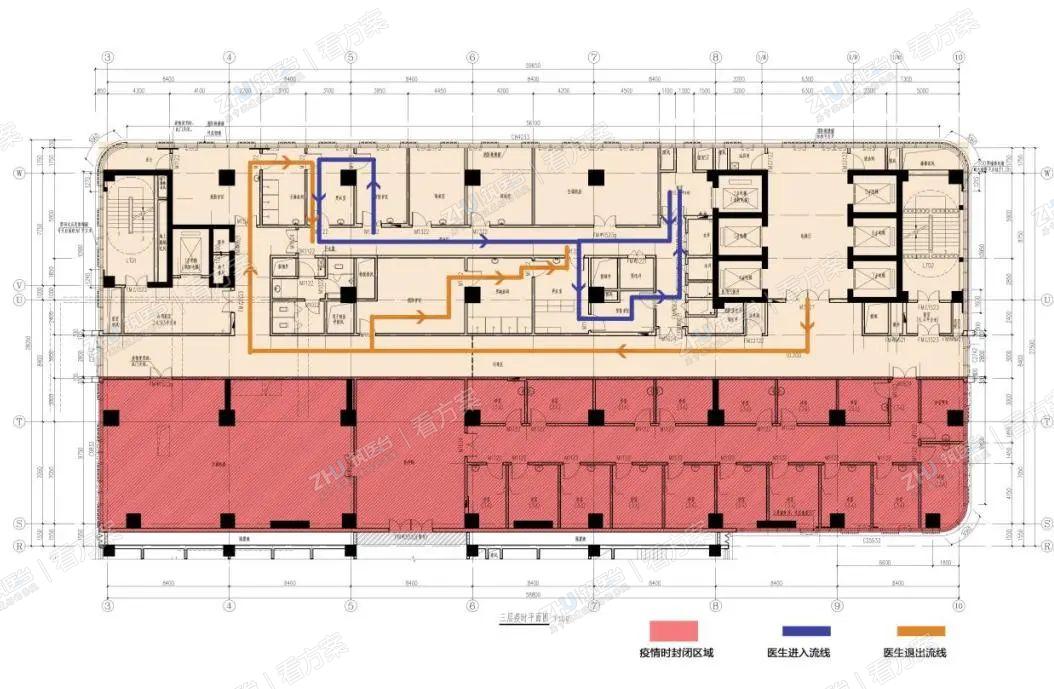
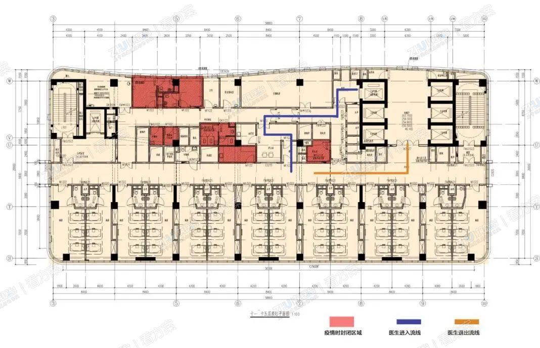
  • 平疫集中转换平面图
    平疫集中转换平面图
  •