• 山西省中医院东山院区项目——推动国家中医药发展的“双核引擎”

    2025/04/21 11:16
    项目鸟瞰效果图
  • 山西省中医院东山院区项目——推动国家中医药发展的“双核引擎”

    2025/04/21 11:16
    总平面图
  • 山西省中医院东山院区项目——推动国家中医药发展的“双核引擎”

    2025/04/21 11:16
    效果图
  • 山西省中医院东山院区项目——推动国家中医药发展的“双核引擎”

    2025/04/21 11:16
    
                            
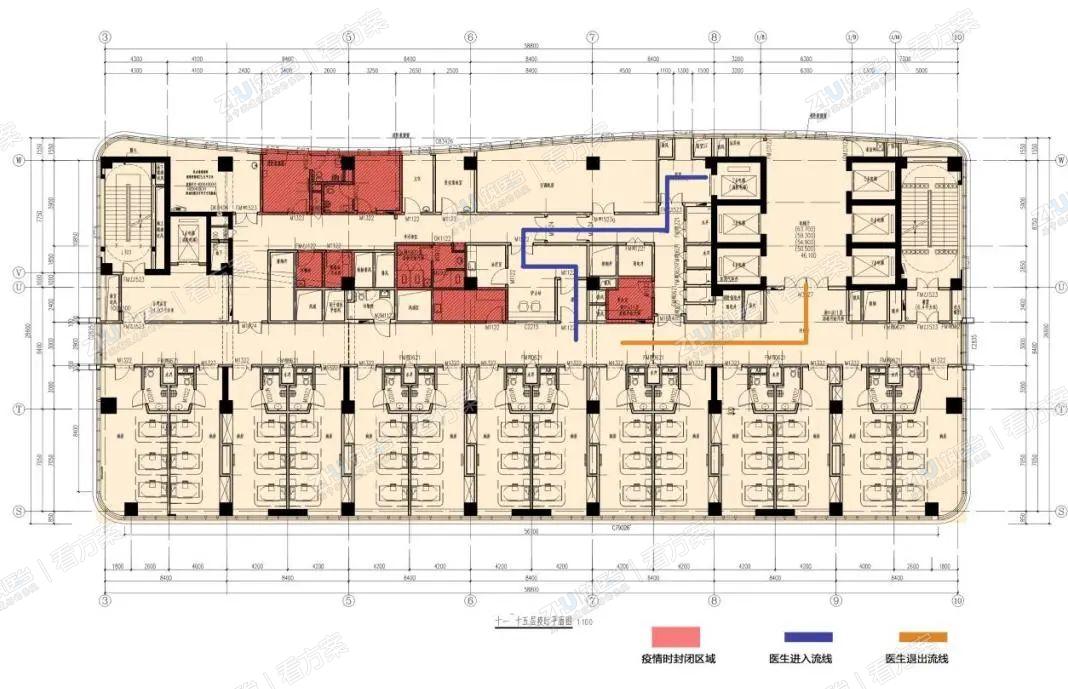
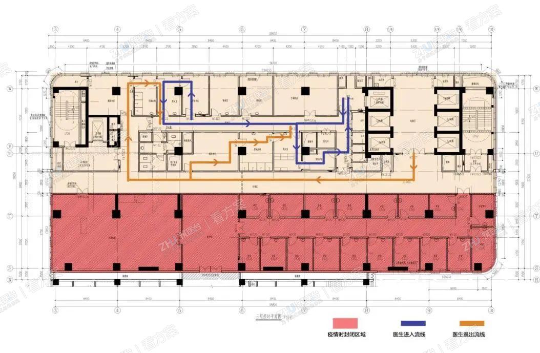
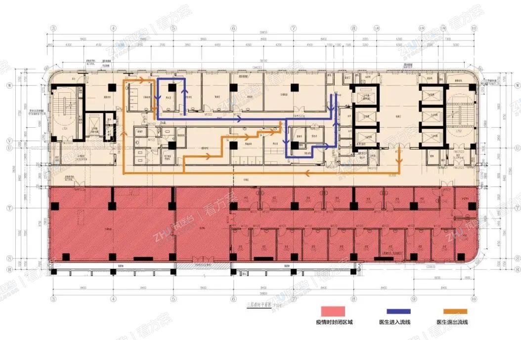
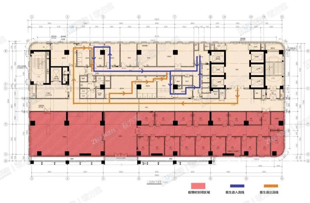
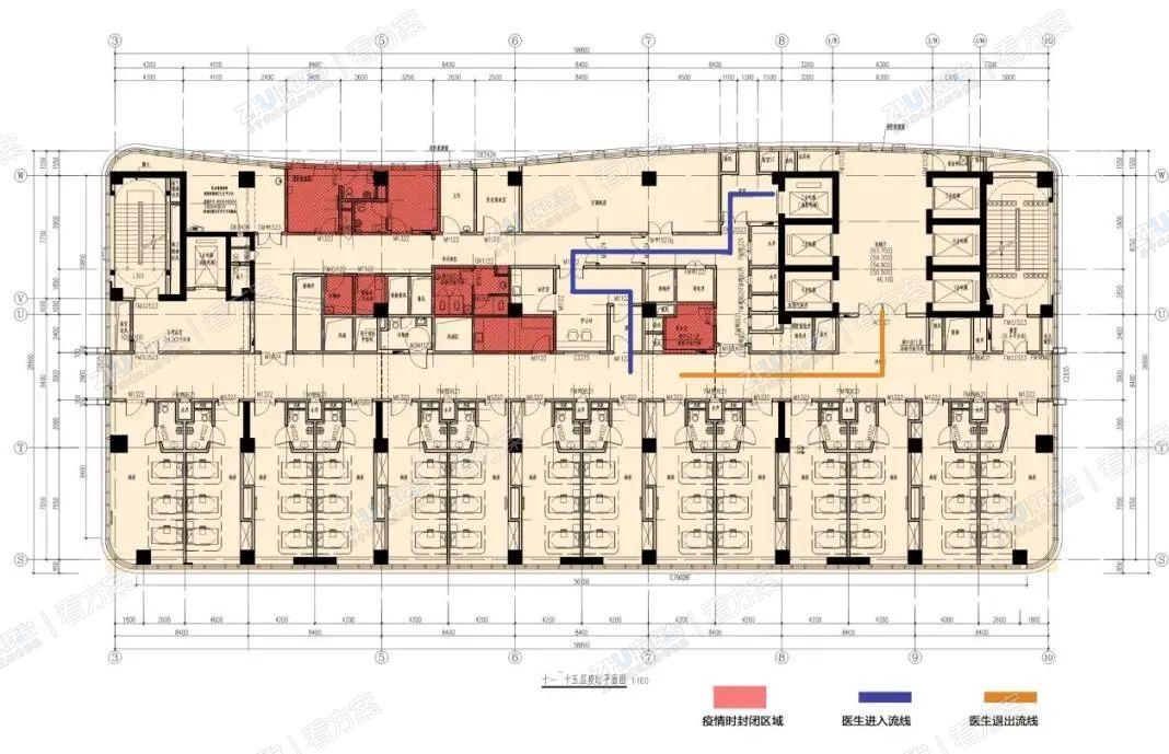
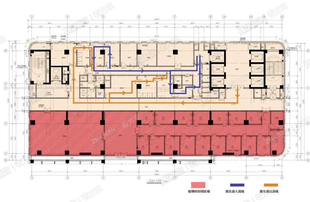
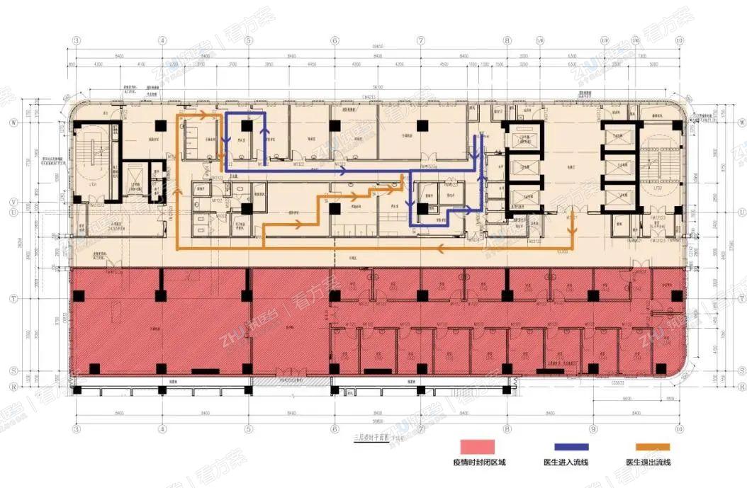
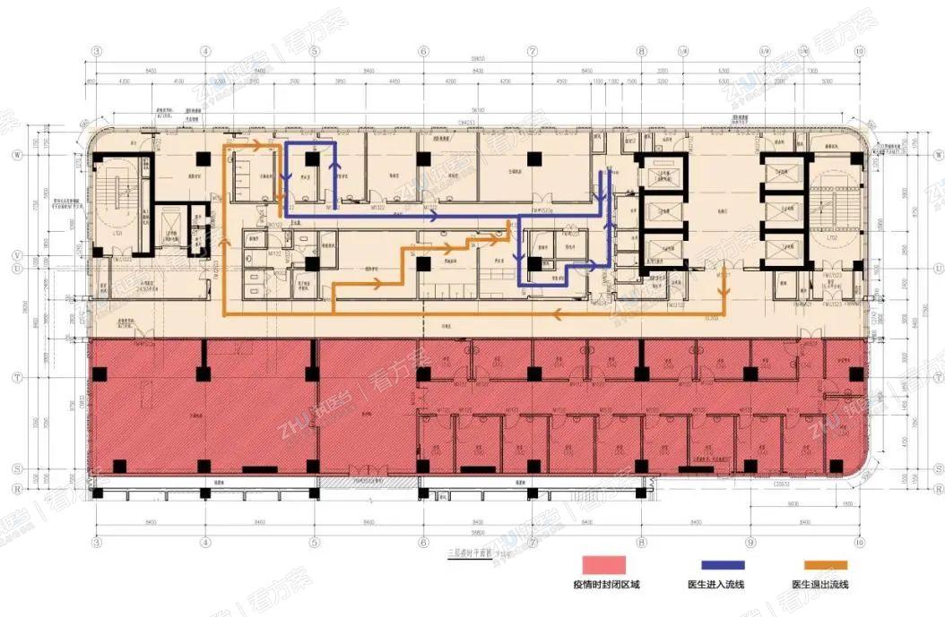
  • 山西省中医院东山院区项目——推动国家中医药发展的“双核引擎”

    2025/04/21 11:16
    平疫集中转换平面图
  • 山西省中医院东山院区项目——推动国家中医药发展的“双核引擎”

    2025/04/21 11:16
    
                            
80%
1/1