筑医台科技有限公司

搜索
CHCC2026
筑医台资讯微信公众号
筑医台
微信扫一扫,获取更多资讯
封面图

淮阴区医院扩建工程 | 会“呼吸”的医院建筑

建筑设计 2019/11/26 14:53
项目名称:淮阴区医院扩建工程概念规划方案设计 项目用地面积:44903㎡ 项目建筑面积:121788㎡ 项目选址位置 :项目位于江苏省淮安市淮阴区,北临北 京西路,东至鞠通路,西至北京北路,南面毗邻富豪花园。

设计师谷丽娜、何嘉欣、阎煜东、刘炎杰

设计院中国中轻国际工程有限公司

建设地点:江苏省淮安市淮阴区

用地面积:44903m2

建筑面积:121788m2

封面图
  • 医院整体鸟瞰图
    医院整体鸟瞰图
  • 医院规划图一
    医院规划图一
  • 医院规划图二
    医院规划图二
  • 医院总平面图
    
    医院总平面图
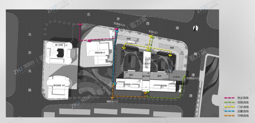
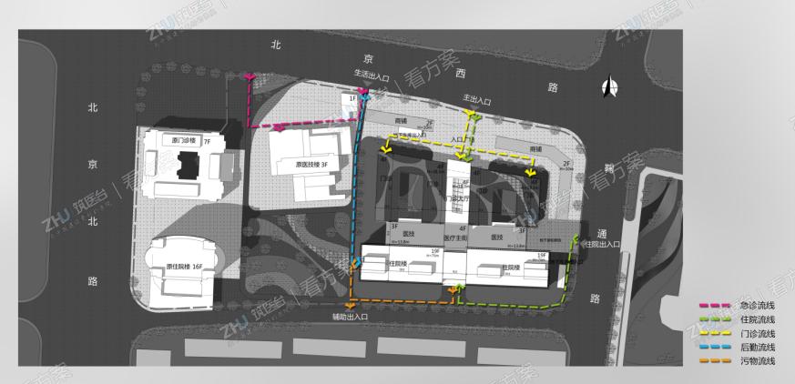
  • 医院流线分析图
    医院流线分析图
  • 医院交通流线分析图
    
    医院交通流线分析图
  • 医院景观分析图
    
    医院景观分析图
  • 医院功能分析图
    
    医院功能分析图
  • 医院分技术路线分析
    
    医院分技术路线分析
  • 医院垂直绿化分析
    
    医院垂直绿化分析
  • 医院一层平面图
    
    医院一层平面图
  • 医院一层平面流线图
    医院一层平面流线图
  • 医院二层平面图
    
    医院二层平面图
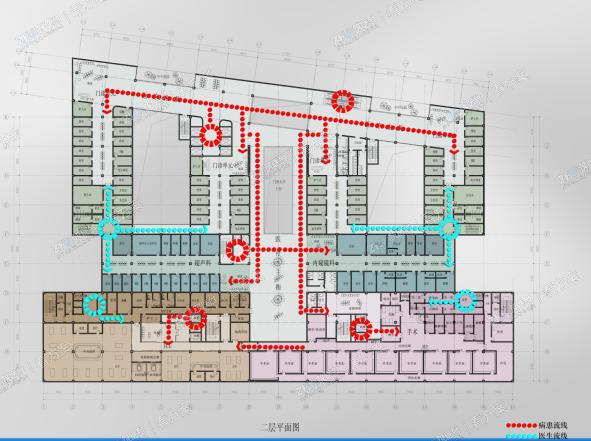
  • 医院二层平面流线图
    医院二层平面流线图
  • 医院三层平面图
    医院三层平面图
  • 医院三层平面流线图
    医院三层平面流线图
  • 医院四层平面图
    医院四层平面图
  • 医院四层平面流线图
    医院四层平面流线图
  • 医院标准层平面图
    医院标准层平面图
  • 医院标准层平面流线图
    医院标准层平面流线图
  • 医院剖面图
    
    医院剖面图
  • 医院立面图
    
    医院立面图
全部评论 (1)
  • 建筑结构补强加固13520205853 :专业结构补强加固资质和施工队伍,承接各地建筑结构补强粘贴碳纤维加固、粘钢加固。13520205853

    20-12-16 07:30