• 淮阴区医院扩建工程 | 会“呼吸”的医院建筑

    2019/11/26 14:06
    医院整体鸟瞰图
  • 淮阴区医院扩建工程 | 会“呼吸”的医院建筑

    2019/11/26 14:06
    医院规划图一
  • 淮阴区医院扩建工程 | 会“呼吸”的医院建筑

    2019/11/26 14:06
    医院规划图二
  • 淮阴区医院扩建工程 | 会“呼吸”的医院建筑

    2019/11/26 14:06
    医院总平面图
    
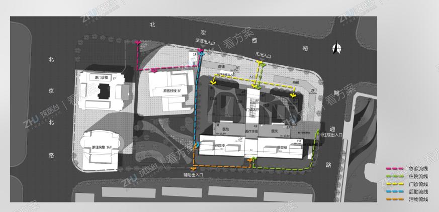
  • 71415521a658e48916b9542742a2b01

    2019/11/26 14:34
    医院流线分析图
  • fb25e06e13fa15b2c8198bf76ee9968

    2019/11/26 14:34
    医院交通流线分析图
    
  • c8ca67726470935eaa243797e084bf6

    2019/11/26 14:35
    医院景观分析图
    
  • 88aee35a01fef3da580fca9159dca03

    2019/11/26 14:49
    医院功能分析图
    
  • 6b5a0b593a7f0c8c03ee2ac459f901a

    2019/11/26 14:51
    医院分技术路线分析
    
  • 156ce29a825a5cd369f1c4f90dc706a

    2019/11/26 14:52
    医院垂直绿化分析
    
  • 851653cdec5eec7579f5f5aa8fbd249

    2019/11/26 14:24
    医院一层平面图
    
  • bcea191c7274b390c2d502ac7634efd

    2019/11/26 14:28
    医院一层平面流线图
  • 4f293c0d50fd6f2dce6ac56cfb3fb0b

    2019/11/26 14:25
    医院二层平面图
    
  • 5814eafa7a03fe69650156b3371b034

    2019/11/26 14:28
    医院二层平面流线图
  • 17cfb667f24c192123b648853b3a5da

    2019/11/26 14:25
    医院三层平面图
  • 89c100083add604bc780e94bb04b0f6

    2019/11/26 14:29
    医院三层平面流线图
  • 02ade4dcdf6b931746f3ed6827595a4

    2019/11/26 14:26
    医院四层平面图
  • b2e26e94e274a9f54a15265bc25f5bd

    2019/11/26 14:30
    医院四层平面流线图
  • 淮阴区医院扩建工程 | 会“呼吸”的医院建筑

    2019/11/26 14:06
    医院标准层平面图
  • 57897730918994ee68a53b6f1c452db

    2019/11/26 14:30
    医院标准层平面流线图
  • fbbd268349e7e5f1c60c625646fe8a4

    2019/11/26 14:31
    医院剖面图
    
  • 淮阴区医院扩建工程 | 会“呼吸”的医院建筑

    2019/11/26 14:06
    医院立面图
    
80%
1/1