文/王传顺
01项目信息
设计单位
华东建筑集团股份有限公司-上海现代建筑装饰环境设计研究院有限公司
团队成员
设计总负责人:王传顺,
室内设计师:焦燕、朱伟、李涛、金喆、蔡聪烨
机电协调:陆俊杰
机电设计师
暖通:张兆劼,电气:王斌,给排水:周君
设计时间:2021年11月
02项目规模
上海远大健康城项目建设用地共计约164682.49平方米,项目建设两所综合性医院,一所占地117412.49平方米,为设置2000张床位的三级非营利性综合医院;一所占地47270平方米,为设置499张床位的二级营利性国际医院。其中,第一部分的综合性医院中的远大健康城-上海医谷医大医院项目门急诊医技综合楼(1#~5#楼)建筑装饰装修工程,总建筑面积197000平方米。

上海医谷医大医院建筑外立面(竣工后 建筑实景)
03室内设计理念
室内设计风格与建筑相呼应,构筑现代简洁、温馨新颖且具有亲和感的国际化的医疗空间。
本案以“围合”为设计主题,寓意家和、圆满、博爱的美好愿景。设计元素采用方盒之形,一层北大厅设计了突破常规思维,吸取互联网式设计理念,将“BOX”元素贯穿到大厅空间当中,通过色彩,大小的对比使空间的科技感进一步强调。
每一个护士站大厅都采用倾斜、旋转的手法,将不同元素和自然景色题材组合,通过这种强烈的视觉艺术方式去塑造新颖、独特、具有吸引力的室内空间。设计用不同色系防火板来区分科室,用色彩讲述故事,让人耳目一新。
设计注重营造温馨、活泼,宁静惬意、舒适的环境的同时,兼顾功能区域划分和指向性作用。儿童医疗空间的设计色彩的选择和搭配更为大胆醒目,增加曲线造型贯穿大厅与走廊空间。
04家具材料的选择
医院的家具软装设计别具一格,服务台设计科技感十足,暗藏灯带,背发光字体以及GRG灵活运用。
整体材料选择注重新型绿色材料的引入,彩色饰面板环保安全、易清洁,并且色彩还原度很高,能够体现不同的饰面肌理。新工艺同样也在设计上得到表达,让材料、色彩、标识之间达到高度契合。
05绿色设计
绿色设计首次打破了医院传统思维,在医院室内空间中,将大量地面橡胶地板、PVC材料,改为造价低、耐摩擦、易清洁的防滑同质地砖系列,既绿色环保、安全,又充分展示色彩图案和不同饰面肌理效果。
室内装饰方案设计从整体策划到设计展示,通过装饰设计、软装设计、标识设计、智能化设计等方面做了充分考虑,竭力为医患人员营造一种现代化、舒适化的优质医疗环境。同时,也展现了医院博爱之路、胆敢百年的愿景,遵循了忠诚履行社会责任,提升国民健康之路的博爱使命。
06图片展示
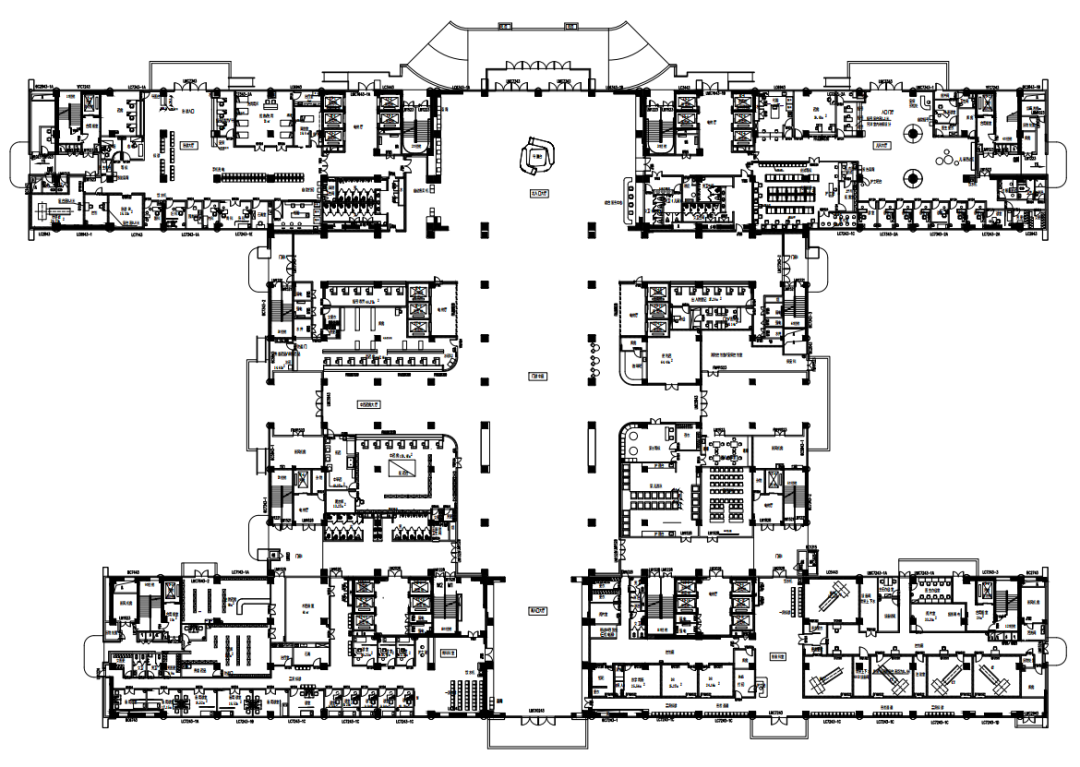
一层

一层平面图


一层北大厅
以国际化医疗空间为立足点。整体空间主要将“盒”的造型融入在挑高立面中的柱体之间,无形之中消化了单调排列的柱体。用高低错落,造型有别的盒子框架构建新颖、有趣的现代化医疗空间体系,打破常规上单调且造型过于严谨的医疗空间氛围,缓解就医患者的紧张情绪;两侧设有置顶的LED屏,用于医院日常的信息发布与专家信息展示;大堂中心为导医台,流线型的导医台设计与顶面天窗相呼应,形成整个空间的视觉中心点,让医患便于识别及人群的疏导;两侧均设有自助设备,方便患者自行挂号,提取报告等需求。同时地面用音符勾勒出大厅空间的活泼、艺术化特性。

一层儿科大厅
整体色彩丰富多彩,吊顶圆弧形石膏板加灯带设计充满童趣,墙面设计卡通装饰图案,每一扇儿童诊室门的观察窗都用卡通字体表现。

一层南大厅
南大厅空间设计元素与其他大厅空间相统一,墙面上将“盒”的造型延续设计。顶面设计色彩丰富的灯箱片,强化突出本案的色彩丰富,现代化设计语言。


一层中庭
中庭空间呼应北大厅空间主题。利用BOX造型将左右两侧挑高空间的柱体消化。高低错落,造型迥异且色彩丰富的造型形成整个医疗空间中最为舒适活跃的交通枢纽空间,同时利用盒子造型设计部分休憩座椅,功能与形式具备,色彩与人性化兼有。
二层

二层平面图

二层儿童眼科
儿童弱视中心,以白色,灰色,淡蓝色和淡黄色为主色调,各种卡通形象的装饰和家具,满足儿童的趣味性需求。

二层耳鼻喉科
选用白色,橙黄色和木饰面,营造温暖、朴素、治愈系的空间环境,让患者沉浸其中,配合医生的治疗。

二层口腔科
口腔科,选用白色,浅黄色和木饰面为主色调,营造高雅、放松的环境。

二层内镜检查
内镜检查,选用白色,浅蓝色和木饰面为主色调,营造祥和的氛围,舒缓患者的焦虑和不安。
三层

三层平面图

三层VIP体检
VIP体检接待台折线造型彰显了个性化设计,主背景墙的仿石材玻化砖造型与灯光结合强调了空间竖向的关系,艺术灯具使空间更具艺术化。

三层妇科
妇科候诊区色调以米黄色系为主,服务台通过白色造型与背景形成一个整体,局部的木纹色运用增加了空间温馨的氛围。

三层中医科
中医候诊区将传统的中医文化与现代化的医院设计风格相结合,雪花白的仿石材砖、木纹覆膜金属板保证了空间的品质感。铝板转印中医文化的背景墙与新中式前台为空间植入了中医元素。

三层体检中心
四层

四层平面图

4层美容整形
4层美容整形体现了对空间品质感的追求。重色的木纹覆膜金属前台使空间色调层次分明。艺术吊灯及轻奢家具组合搭配出现代典雅的空间氛围。
五层

五层平面图
六层

六层平面图

六层产科等候
6F产科等候大厅以暖色调为主,黄绿色的背景墙体现新生儿即将到来的生命气息,吊顶采用花朵形式的LED照明丰富空间环境。
七-十二层标准层

(七-十二层)标准病房平面图

九层儿童病房走廊
9层儿童活动室氛围欢乐活泼,墙面装饰突出卡通特点,软装家具设计更显趣味,让孩子们徜徉在欢乐的海洋。

标准层电梯厅
电梯厅每层都被赋予一个主题。1-5F标准电梯厅(动感箭头+标识)、6F电梯厅、7F产科电梯厅、8F妇科病房电梯厅、9F儿童病房层电梯厅、10F至15F电梯厅。

男女卫生间入口
男女卫生间采用粉色和蓝色金属板作为底色,男女抽象图案醒目自然,木纹人造石台面现代简约,里侧烤漆玻璃与内部装修呼应。
作者简介

王传顺
华建集团—上海现代建筑装饰环境设计研究院有限公司总工程师
上海现代建筑装饰环境设计研究院有限公司资深总工程师、医养建筑室内设计中心主任、教授级高级工程师,中国建筑装饰协会设计委主任委员、中国室内装饰协会设计委副主任、中国建筑学会室内设计分会常务理事、上海市建设工程评标专家、华东理工大学、东华大学硕士研究生导师。中国建筑科学研究院养老建筑研究中心外聘研究员、中国医学装备协会医院建筑与装备分会医院室内设计专业委员会副主任委员、2020年中国医疗建筑设计年度杰出人物。

>