筑医台科技有限公司

搜索
CHCC2026
筑医台资讯微信公众号
筑医台
微信扫一扫,获取更多资讯
封面图

青岛大学附属医院国际医疗中心:都市桃源,注重患者体验的医疗空间

建筑设计 2025/01/23 14:55
就医环境的设计必须与时俱进,人们追求生活品质的同时对就医体验有了更高要求,不再满足于以往冰冷的诊疗方式,所以提升医疗服务、环境品质、就医流程等方面的体验成了医疗建筑设计的新起点。

设计师许海涛 张丽欣 穆晓燕 王旭 郝爽

设计院中国中元国际工程有限公司

建设地点:山东省青岛市崂山区

建筑面积:66300m2

床位数:300床

封面图
  • 项目用地受既有建筑、场地制约,高差10米
    项目用地受既有建筑、场地制约,高差10米
  • L型塔式布局实景
    L型塔式布局实景
  • 
                            
                        
  • 结合城市立体交通,构筑立体城市
    结合城市立体交通,构筑立体城市
  • 北侧双首层落客体系
    北侧双首层落客体系
  • 南侧住院落客
    南侧住院落客
  • 夜景
    夜景
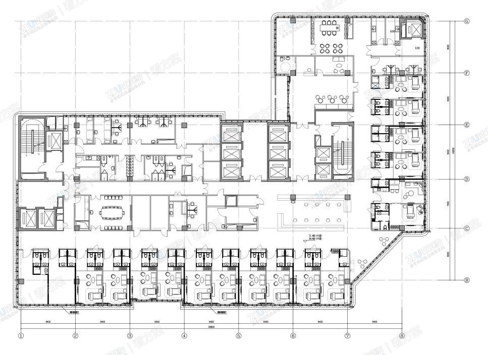
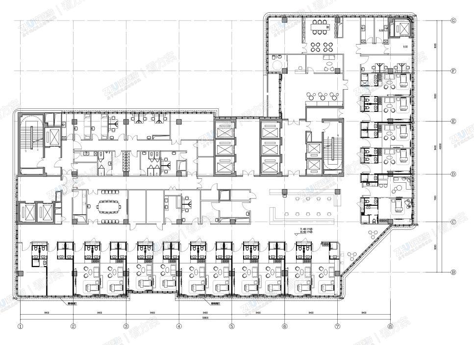
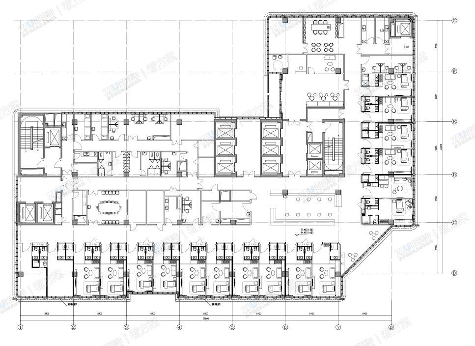
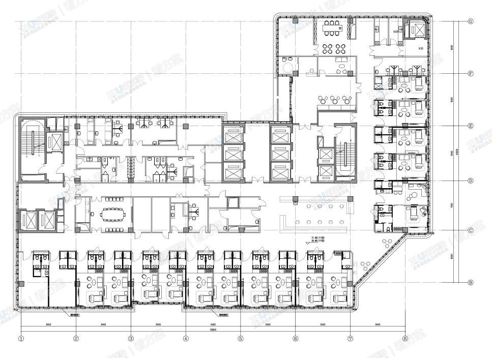
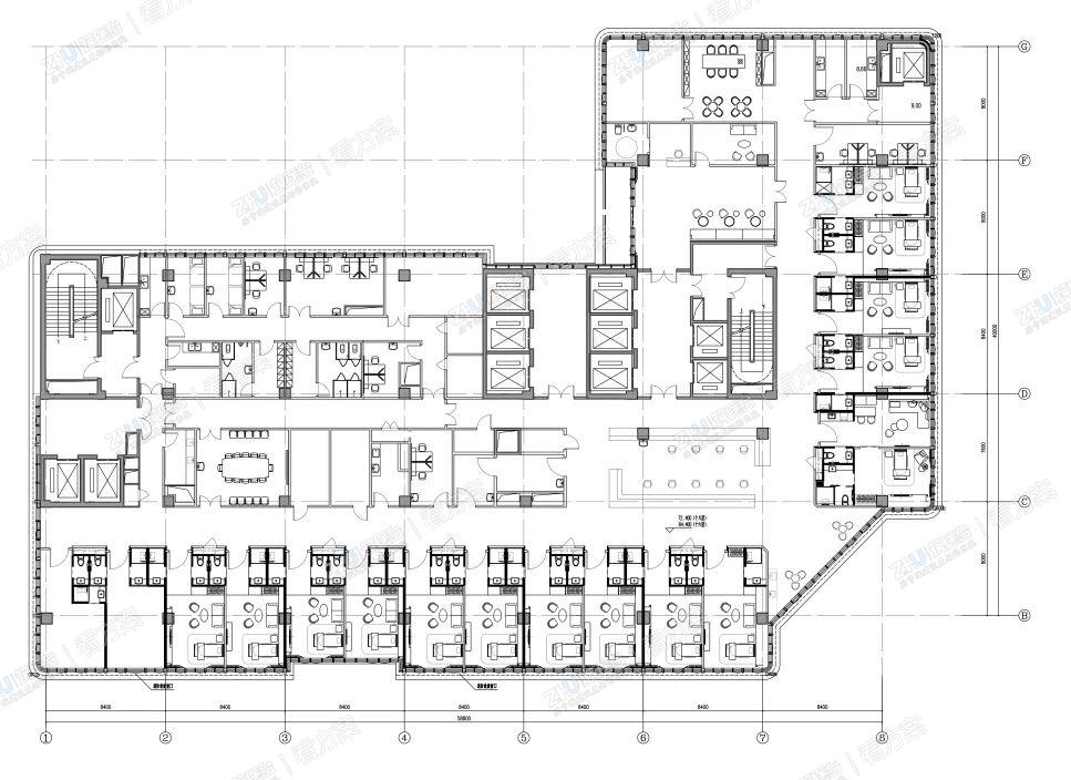
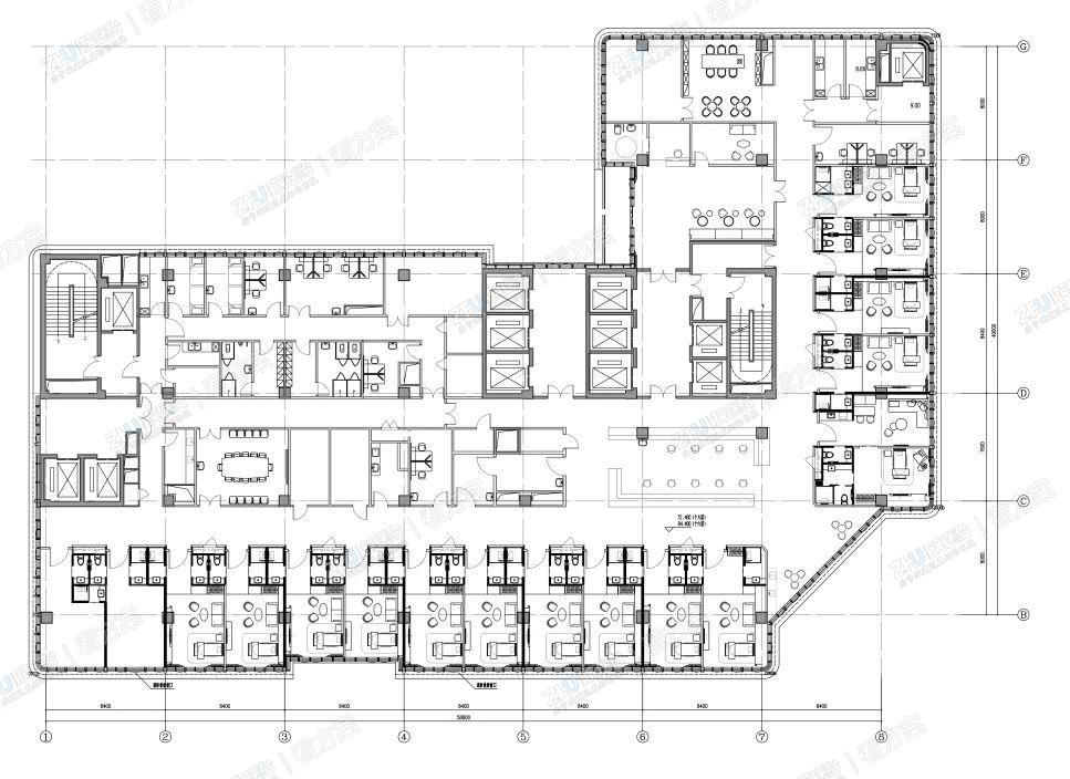
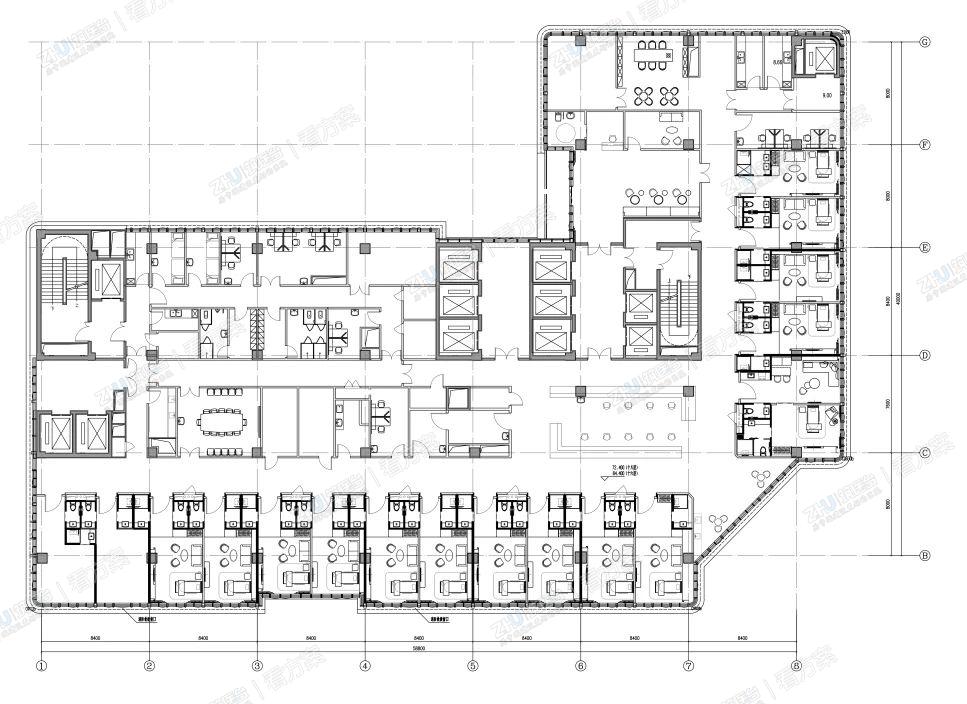
  • 护理单元
    护理单元
  • 小候诊空间,实现环境独享和私密性
    小候诊空间,实现环境独享和私密性
  • 
                            
                        
  • 候梯空间
    候梯空间
  • 特需护理单元
    特需护理单元
  •