筑医台科技有限公司

搜索
CHCC2026
筑医台资讯微信公众号
筑医台
微信扫一扫,获取更多资讯
封面图

泰康之家吴园二级康复医院 | 追求场所精神的空间设计

室内设计 2019/08/23 11:47
项目名称:泰康之家吴园二级康复医院 设计面积:10300平方米 项目选址位置:江苏·苏州 阳澄湖畔

设计师张凯、陈亮、王群

设计院中国中元国际工程有限公司

建设地点:江苏·苏州 阳澄湖畔

封面图
  • 泰康之家吴园会所 建筑效果图
    泰康之家吴园会所 建筑效果图
  • 餐厅
    餐厅
  • 运动康复区走廊
    运动康复区走廊
  • 运动康复区
    运动康复区
  • 病房层活动区
    病房层活动区
  • 单人间病房
    单人间病房
  • 设计理念:苏州园林是苏州最特别的名片。
    提取城市中最具特点的元素:水为贯穿本次设计的概念。
    水活物也,其形欲深静、欲柔滑、欲汪洋、欲迴环、欲肥腻、欲喷薄……
    水是生命之源
    设计理念:苏州园林是苏州最特别的名片。
提取城市中最具特点的元素:水为贯穿本次设计的概念。
水活物也,其形欲深静、欲柔滑、欲汪洋、欲迴环、欲肥腻、欲喷薄……
水是生命之源
  • 设计理念:山贵有脉,水贵有源,脉理贯通,全园生动。园林讲究“疏源之去由,察水之来历”,水也以多种形式指引着人们。
    水将围绕着医院,为使用者创造一个安心舒适的就医环境。
    
    设计理念:山贵有脉,水贵有源,脉理贯通,全园生动。园林讲究“疏源之去由,察水之来历”,水也以多种形式指引着人们。
水将围绕着医院,为使用者创造一个安心舒适的就医环境。
  • 地域性表达:
    室内设计语言来自于苏州当地建筑、吴园及苏州博物馆,结合建筑坡屋顶的条件,室内吊顶设计成斜面,将空间有效利用,构成独一无二的空间体验。
    
    地域性表达:
室内设计语言来自于苏州当地建筑、吴园及苏州博物馆,结合建筑坡屋顶的条件,室内吊顶设计成斜面,将空间有效利用,构成独一无二的空间体验。
  • 地域性表达:
    提取苏州特有的文物:瓶——取平安之意,苏州的市花:桂花——苏韵繁花与“水磨腔”昆曲中的元素,与泰康文化中的“蝶”搭配,作为重点空间的陈设软装主题
    地域性表达:
提取苏州特有的文物:瓶——取平安之意,苏州的市花:桂花——苏韵繁花与“水磨腔”昆曲中的元素,与泰康文化中的“蝶”搭配,作为重点空间的陈设软装主题
  • 原平面规划
    原平面中有一个天井,将室外景观引入,同时补充室内采光。
    吴园康复医院楼层少、体量小,天井的设置会立竿见影的影响室内空间效果
    原平面规划
原平面中有一个天井,将室外景观引入,同时补充室内采光。
吴园康复医院楼层少、体量小,天井的设置会立竿见影的影响室内空间效果
  • 现平面规划
    将多个天井设置于建筑内部,得益于医院的体量,各个空间的使用者,都能够通过天井,感受到室外的自然环境。
    
    现平面规划
将多个天井设置于建筑内部,得益于医院的体量,各个空间的使用者,都能够通过天井,感受到室外的自然环境。
  • 地下一层平面
    
    地下一层平面
  • 一层平面
    
    一层平面
  • 急诊、康复、物流流线
    
    急诊、康复、物流流线
  • 体检和门诊流线
    体检和门诊流线
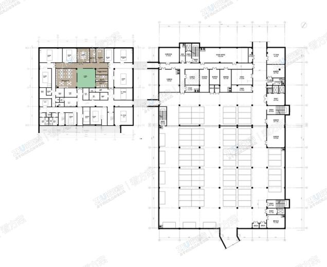
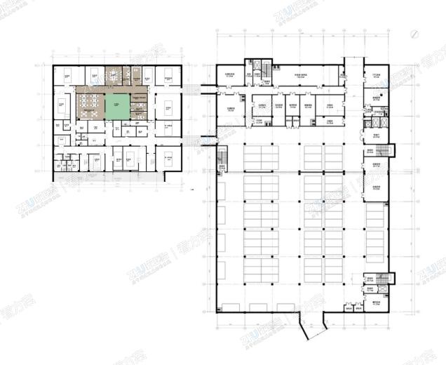
  • 二/三层平面
    
    二/三层平面
  • 二、三层动线,患者流线和洁/污梯
    
    二、三层动线,患者流线和洁/污梯
  • 体检大厅平面图
    体检大厅平面图
  • 体检大厅
    采用苏州园林建筑符号、语言,体现医院特色。
    体检大厅
采用苏州园林建筑符号、语言,体现医院特色。
  • 一般诊室
    一般诊室
  • 口腔诊室
    口腔诊室
  • 电梯间平面图
    电梯间平面图
  • 电梯间采用几何线条、双破屋顶等设计概念展现明亮透明的特点。
    
    电梯间采用几何线条、双破屋顶等设计概念展现明亮透明的特点。
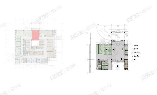
  • 运动康复区平面图
    运动康复区平面图
  • 单人间病房平面图
    
    单人间病房平面图
  • 卫生间平面图
    卫生间平面图
  • 
                            
                        
  • 
                            
                        
  • 
                            
                        
  • 
                            
                        
  • 体检大厅照明设计
    照度计划在300Lux,营造宾至如归的感受
    体检大厅照明设计
照度计划在300Lux,营造宾至如归的感受
  • 门诊大厅照明设计
    照度计划在300Lux左右,营造亲和愉悦感。
    
    门诊大厅照明设计
照度计划在300Lux左右,营造亲和愉悦感。
  • 导视设计
    
    导视设计
  • 导视设计图详解
    
    导视设计图详解
  • 导视设计图详解
    导视设计图详解