筑医台科技有限公司

搜索
CHCC2026
筑医台资讯微信公众号
筑医台
微信扫一扫,获取更多资讯
封面图

眉山天府新区第一人民医院:全钢结构高层医院的室内方案设计思路

室内设计 2022/11/24 13:08
项目名称:眉山天府新区第一人民医院 总规划用地面积:118690.02(约178亩) 总建筑面积:154840.72平方米(其中地上建筑面积111832.97平方米,地下建筑面积43007.75平方米) 床位数:850张(普通住院床位数800张,感染楼床位数50张) 项目位于四川省天府新区眉山直管区,南临环天府新区快速路,东靠益州大道南延线。总用地面积178亩,总床位数1500余床,为全钢结构高层医院。项目统一规划、整体设计、分期实施,采用“近期850床综合医疗+远期独立专科医学中心”的模式。本医院是全钢结构医院,结构构件均为工厂预制。 眉山天府新区第一人民医院项目建筑设计以包容并蓄的儒家思想,呼应城市空间与城市界面,融入“医者济世如上善之水、泽惠四方”的文化寓意,结合现代“综合+专科”的医院发展理念,打造具有人文情怀和形象寓意的空间布局形态。

设计师张远平、张国强、徐进、王哲星、周弋帆、何杰、徐源、付小青、肖巍

设计院中国建筑西南设计研究院有限公司

封面图
  • 本医院是全钢结构医院,结构构件均为工厂预制
    本医院是全钢结构医院,结构构件均为工厂预制
  • 建筑效果图
    建筑效果图
  • 建筑效果图
    建筑效果图
  • 建筑效果图
    建筑效果图
  • 
                            
                        
  • 医技楼平面图
    医技楼平面图
  • 负一层
    负一层
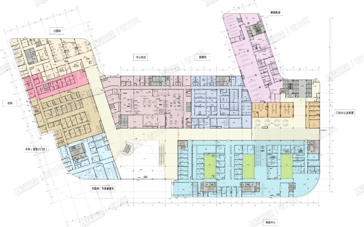
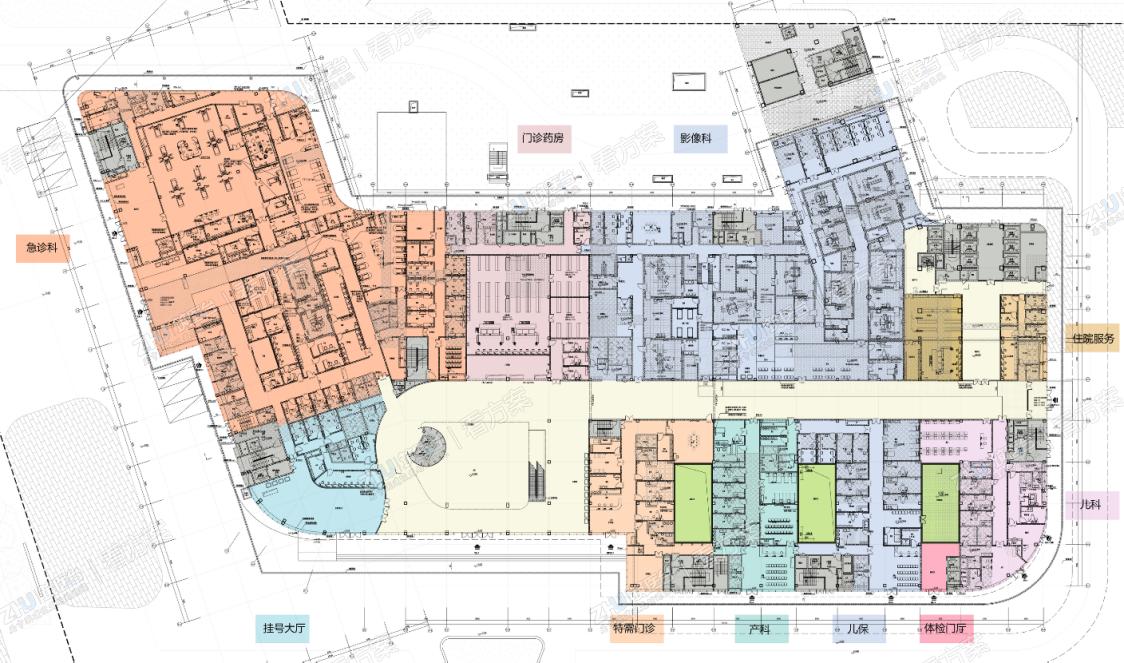
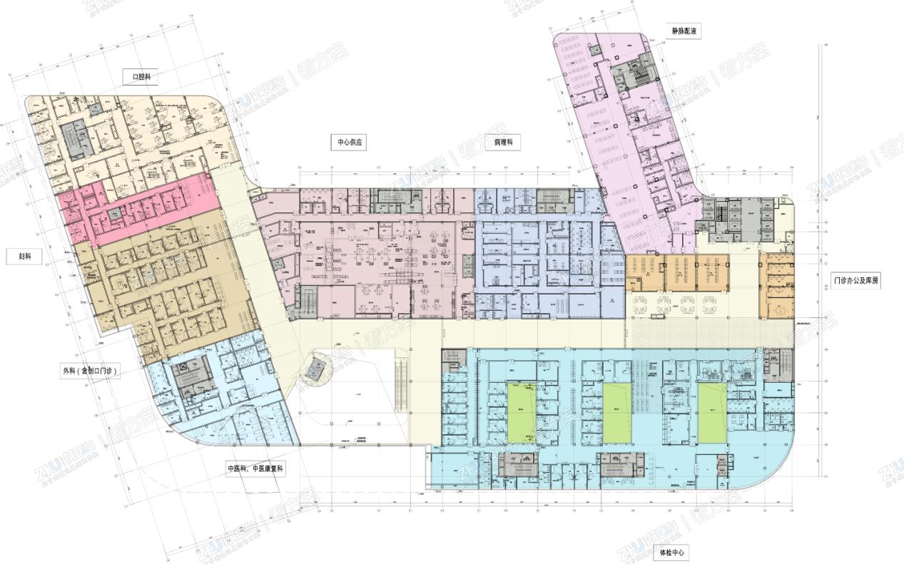
  • 一层
    一层
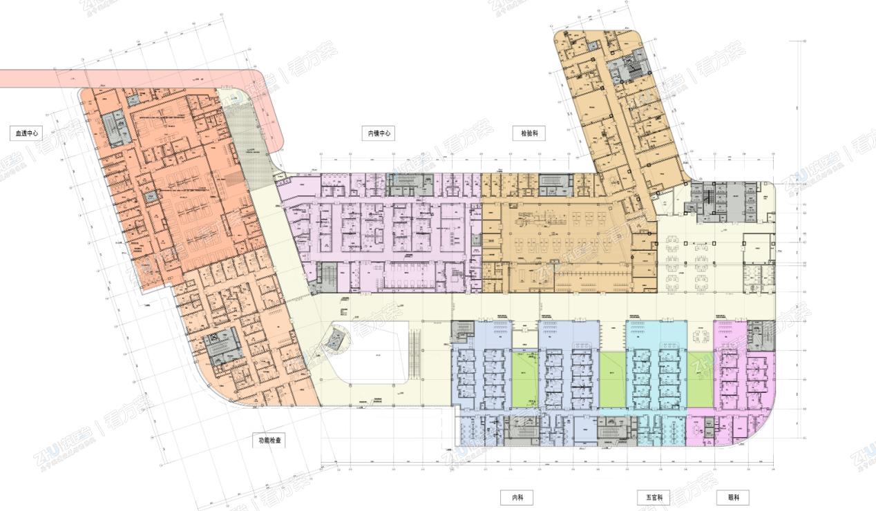
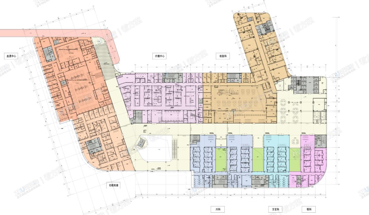
  • 二层
    二层
  • 三层
    三层
  • 四层
    四层
  • 住院楼标准层平面图
    住院楼标准层平面图
  • 医技楼门诊大厅
    医技楼门诊大厅
  • 医技楼门诊大厅
    医技楼门诊大厅
  • 医技楼医院街
    医技楼医院街
  • 病房护士站
    病房护士站
  • 住院电梯厅
    住院电梯厅
  • 行政办公大厅
    行政办公大厅
  • 疾控大厅
    疾控大厅
  • 行政报告厅
    行政报告厅
  • 综合科
    综合科
  • 妇科
    妇科
  • 儿科
    儿科
  • 中医科
    中医科
  • 标准病房
    标准病房