医院主入口透视图
南山大道透视图
国际诊疗中心透视图
医院主入口透视图
医院屋顶花园透视图
医院门诊大厅透视图
医疗街室内花园透视图
医疗街透视图
医院总平面图
项目位于深圳市南山区中心城区,基地为不规整的L形用地。
医院功能分区
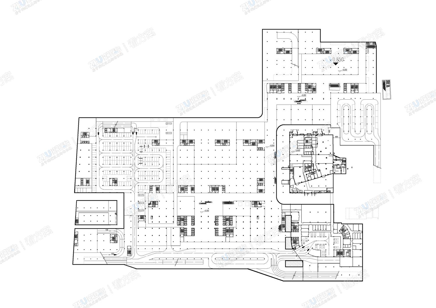
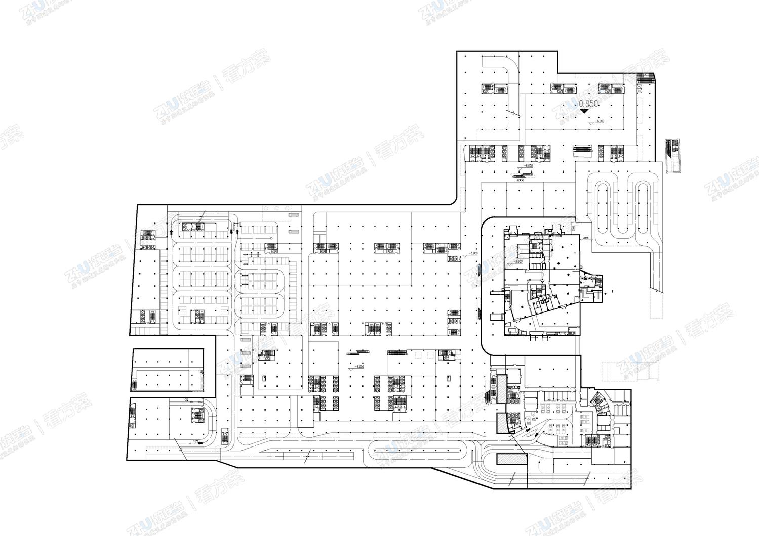
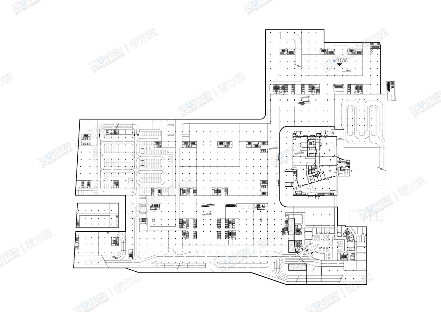
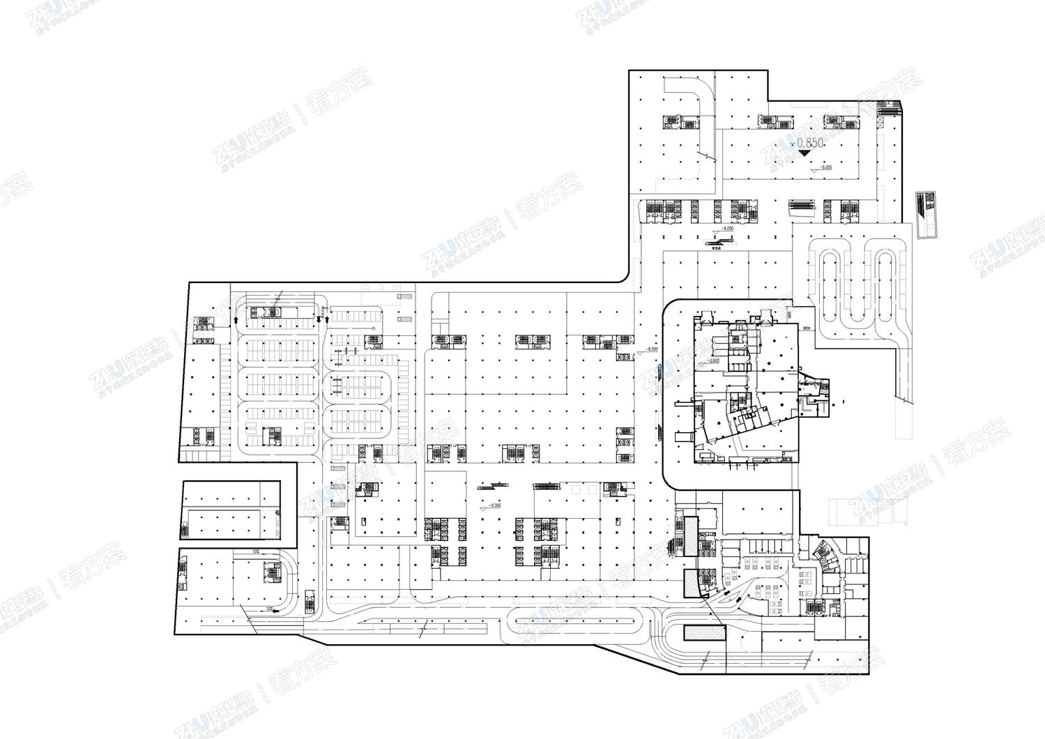
地下三层平面图
地下二层平面图
地下一层平面图
首层平面图
二层平面图
三层平面图
四层平面图
五层平面图
六层平面图
标准护理单元平面图
1-1剖面图
2-2剖面图
3-3剖面图
双街模式的功能布局 设计门诊街与住院街,有效分流门诊与住院病人,避免交叉感染;保留住院区、综合住院区与国际诊疗住院区相对集中,便于后期运营管理;分别设置门诊病人与住院病人医技等候区,互不干扰。
高效的医疗服务平台 中央医技平台化,整合社会医疗资源,发展对外服务,实现医疗机构之间资源的最大化利用,有利于提升区域医疗服务水平。
双地铁无缝接驳 地下一层设置专用地铁接驳通道,与地铁建立无风雨联系。为了改变传统医院冰冷的空间感受,沿地铁通道两侧植入多种服务设施和共享功能,为全院提供优质服务。
无风雨立体交通 在基地南侧与东侧设置下穿道路,并采用单向循环,结合下穿道路分别设置住院区、门诊区专用交通接驳系统,并采用单向循环,提高进出车效率。
无风雨立体交通 结合南山大道设置医院专用下穿通道,避免南山大道北向掉头车辆对道路的拥堵,同时结合下穿通道设置门诊区专用交通接驳系统,提高进出车效率。
无风雨立体交通 这种设计策略,既可避免传统车辆路边上落客造成的城市干道交通拥堵,又减少了患者行动距离,实现无风雨接驳,患者可经过设置于地下一层的医疗街到达任意诊疗单元。
8小时/24小时运营系统 方案创造了由门诊组成的8小时运营系统及由急诊急救、国际诊疗中心与住院区组成的24小时运营系统,各系统既相对集中,独立高效运营,又共享中央医技系统,提高运营效率,降低建筑能耗。
高端的国际诊疗中心 国际诊疗中心服务于VIP人群及国际友人,提供个性化、差异化的医疗服务。设置 独立的出入口、大厅、独立的门诊区、医技区、住院区、体检、餐厅等功能。
141426
102137
101848
62011