筑医台科技有限公司

搜索
CHCC2026
筑医台资讯微信公众号
筑医台
微信扫一扫,获取更多资讯
封面图

中南大学湘雅二医院门急诊医技楼 | 化繁为简,搭建医疗系统集成平台

建筑设计 2019/09/12 10:24
项目名称:中南大学湘雅二医院门急诊医技楼 项目用地面积:14600平方米 项目建筑面积:98756平方米 项目选址位置:中南大学湘雅二医院门急诊医技楼项目用地,位置北邻第二住院大楼,南至人民中路,东临精卫综合楼,西至南元宫巷。

设计师白玉霞、李纪元、张晓谦、姜凤宇、刘健昕、李辉

设计院中国中元国际工程有限公司 医疗建筑设计院

建设地点:项目用地位置北邻第二住院大楼,南至人民中路,东 临精卫综合楼,西至南元宫巷。

用地面积:14600m2

建筑面积:98756m2

封面图
  • 医院门急诊医技楼鸟瞰图
    医院门急诊医技楼鸟瞰图
  • 沿人民中路夜景效果图
    
    沿人民中路夜景效果图
  • 门诊入口下沉广场效果图
    
    门诊入口下沉广场效果图
  • 门诊室内大厅效果图
    
    门诊室内大厅效果图
  • 沿人民中路实景合成效果图
    
    沿人民中路实景合成效果图
  • 景观庭院
    
    景观庭院
  • 多维度空间概念
    多维度空间概念
  • 优化整合的医院总体医疗格局
    
    优化整合的医院总体医疗格局
  • 车流平面图
    车流平面图
  • 机动车交通组织流线图
    机动车交通组织流线图
  • 功能流线图
    功能流线图
  • 集群化的医疗系统平台
    集群化的医疗系统平台
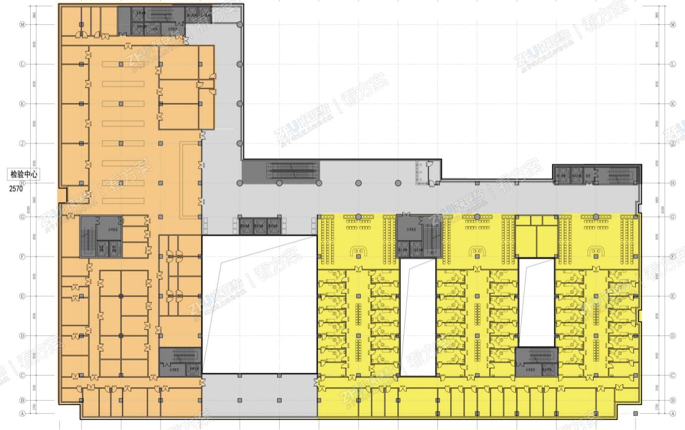
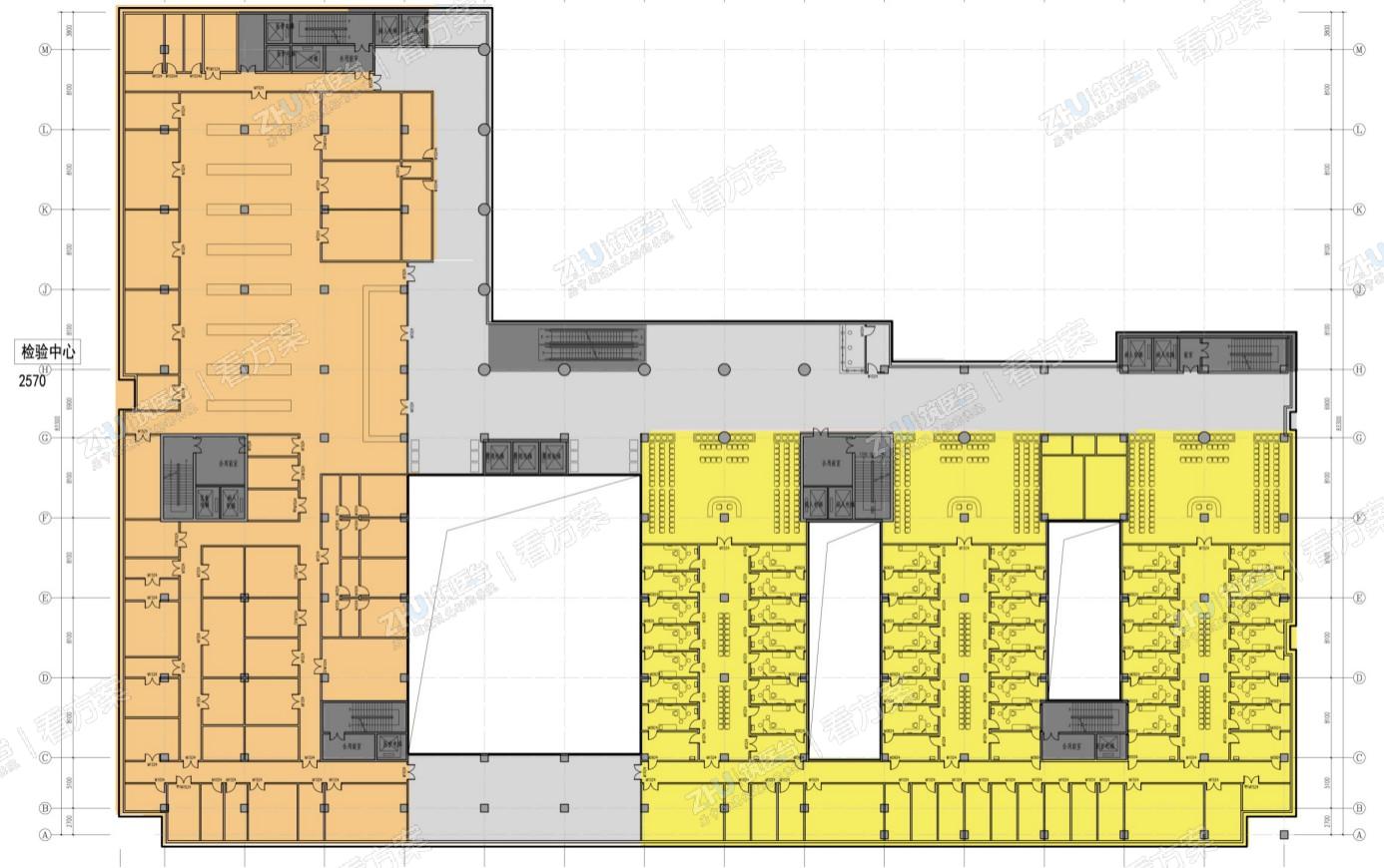
  • 典型平面
    
    典型平面
  • 主要人流平面图,主要人群从上层平台进入
    
    主要人流平面图,主要人群从上层平台进入
  • 主要人流平面图,下层平台与地下人行通道连接
    
    主要人流平面图,下层平台与地下人行通道连接
  • 门诊入口采用“双层平台”解决5米地形高差
    
    门诊入口采用“双层平台”解决5米地形高差
  • 北侧景观庭院采用“双层平台”解决地形高差,人车分流
    
    北侧景观庭院采用“双层平台”解决地形高差,人车分流
  • 独创医疗绿色生态体系。建筑内部设置自然采光通风的中庭;沿着入口大厅与北侧庭院形成穿堂风;建筑内部的采光庭院保证80%房间采光;北侧下沉庭院为地下室提供采光。
    独创医疗绿色生态体系。建筑内部设置自然采光通风的中庭;沿着入口大厅与北侧庭院形成穿堂风;建筑内部的采光庭院保证80%房间采光;北侧下沉庭院为地下室提供采光。
  • 门诊大厅透视图
    
    门诊大厅透视图
  • 门诊医技楼内俯视景园庭院
    门诊医技楼内俯视景园庭院
  • 室外景观庭院效果图
    室外景观庭院效果图
全部评论 (0)