筑医台科技有限公司

搜索
CHCC2026
筑医台资讯微信公众号
筑医台
微信扫一扫,获取更多资讯
封面图

南京市仙林中医医院案例 | 山水园林中的现代化中医院

建筑设计 2019/08/23 11:46
南京市仙林中医医院 项目用地面积:45481.69m2 项目建筑面积:129854m2 地上:68757m2 地下:61097m2 规划床位数:800床

设计师曹伟

设计院东南大学建筑设计研究院有限公司

建设地点:南京市仙林中医医院选址位于中国南京仙林大学城东侧,仙林湖-白象片区.

用地面积:45481.69m2

建筑面积:129854m2

床位数:800床

封面图
  • 西北向鸟瞰图
    西北向鸟瞰图
  • 北侧门诊入口鸟瞰图
    北侧门诊入口鸟瞰图
  • 东侧鸟瞰图
    东侧鸟瞰图
  • 北侧门诊入口人视图
    北侧门诊入口人视图
  • 梨园人视图
    梨园人视图
  • 北侧门诊入口广场人视图
    北侧门诊入口广场人视图
  • 共享门诊大厅效果图
    共享门诊大厅效果图
  • 住院部休息大厅效果图
    住院部休息大厅效果图
  • 共享医疗街效果图
    共享医疗街效果图
  • 建筑立面表层效果图
    建筑立面表层效果图
  • 方案采用开放式布局,模糊与社区、城市的硬性边界,使院区成为吸引周边社区居民进入的治愈花园,也为病患提供交流休闲的场所空间。做到开放亲和、医院建筑的社区化。
    方案采用开放式布局,模糊与社区、城市的硬性边界,使院区成为吸引周边社区居民进入的治愈花园,也为病患提供交流休闲的场所空间。做到开放亲和、医院建筑的社区化。
  • 基地北侧的仙林大道噪音干扰大,西侧守敬南路交通流量较大。故方案将院区将人流量较多的门急诊靠近道路进出方便的西侧,将病房等较为安静的功能置于用地东侧与南侧,临近居住地块。医技功能设置于门诊与病房之间的中
    基地北侧的仙林大道噪音干扰大,西侧守敬南路交通流量较大。故方案将院区将人流量较多的门急诊靠近道路进出方便的西侧,将病房等较为安静的功能置于用地东侧与南侧,临近居住地块。医技功能设置于门诊与病房之间的中
  •  综合考虑人流来向和城市界面形象,将院区主入口面向仙林大道,车行由辅道进出;住院部主入口位于南部,由南部规划道路出入;急诊急救面向西侧独立开口;后勤污物出入口设置于场地东侧规划城市支路。
     综合考虑人流来向和城市界面形象,将院区主入口面向仙林大道,车行由辅道进出;住院部主入口位于南部,由南部规划道路出入;急诊急救面向西侧独立开口;后勤污物出入口设置于场地东侧规划城市支路。
  • 景观设计
           规划通过一系列庭院设置,使门诊、医技、住院在获得采光通风的同时也获得良好的外部景观,还通过借景的手法将西、南侧外部山体景观纳入院区,间接地扩大了景观纵深。
    景观设计
       规划通过一系列庭院设置,使门诊、医技、住院在获得采光通风的同时也获得良好的外部景观,还通过借景的手法将西、南侧外部山体景观纳入院区,间接地扩大了景观纵深。
  • 动态交通组织
           场地内部设计U形环道(对主入口空间车行控制)。就诊与探视车辆由北侧门诊入口、南侧住院入口直接进入地下,并通过地下门诊、住院的落客区联系负一层住院门厅和就诊大厅,分散就诊人流
    动态交通组织
       场地内部设计U形环道(对主入口空间车行控制)。就诊与探视车辆由北侧门诊入口、南侧住院入口直接进入地下,并通过地下门诊、住院的落客区联系负一层住院门厅和就诊大厅,分散就诊人流
  •  地面停车.本项目按需配置约1133个停车位,北侧主入口两侧进出分设车道,住院部入口两侧分设地下车库坡道,满足住院及急诊急救停车需求。
     地面停车.本项目按需配置约1133个停车位,北侧主入口两侧进出分设车道,住院部入口两侧分设地下车库坡道,满足住院及急诊急救停车需求。
  • 地下一层停车场
    地下一层停车场
  • 地下二层停车场
    地下二层停车场
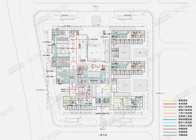
  • 建筑一层平面图
    
    建筑一层平面图
  • 建筑二层平面图
    建筑二层平面图
  • 建筑三层平面图
    建筑三层平面图
  • 建筑三层平面图
    建筑三层平面图
  • 建筑五层平面图
    建筑五层平面图
  • 医院急诊急救流线图
    医院急诊急救流线图
  • 综合门诊流线图
    综合门诊流线图
  • 手术室与ICU流线图
    手术室与ICU流线图
  • 中心供应流线图
    中心供应流线图
  • 住院部流线图
    住院部流线图
  • 装配式建筑策略
    装配式建筑策略
  • 庭院与采光通风.
    在进深较大的中心体量内部设置多个景观内庭,内庭系统通过烟囱效应对自然通风起到重要作用,同时可给建筑内部带来充分采光、绿化,改善就诊工作环境。
    
    庭院与采光通风.
在进深较大的中心体量内部设置多个景观内庭,内庭系统通过烟囱效应对自然通风起到重要作用,同时可给建筑内部带来充分采光、绿化,改善就诊工作环境。
  • “生态连廊”
    病房公共廊为南北向玻璃通廊,外侧垂直设置枫木色穿孔铝板,一方面起到遮阳作用,同时也丰富了光影效果,结合垂直绿化设置,体现生态的主题。
    
    “生态连廊”
病房公共廊为南北向玻璃通廊,外侧垂直设置枫木色穿孔铝板,一方面起到遮阳作用,同时也丰富了光影效果,结合垂直绿化设置,体现生态的主题。
  • 双首层交通模式
    双首层的交通模式确保病患快捷就诊。就诊与探视车辆由北侧门诊入口、南侧住院入口直接进入地下,并通过地下门诊、住院的落客区联系负一层住院门厅和就诊大厅,分散就诊人流。
    双首层交通模式
双首层的交通模式确保病患快捷就诊。就诊与探视车辆由北侧门诊入口、南侧住院入口直接进入地下,并通过地下门诊、住院的落客区联系负一层住院门厅和就诊大厅,分散就诊人流。
  • 功能空间社区化
    住院部强化功能空间的社区化,引入品牌快餐、病员超市、书店、健身瑜伽、理发美容、美术展览、古筝演奏等,设置随处可达的交流与休闲空间。
    
    功能空间社区化
住院部强化功能空间的社区化,引入品牌快餐、病员超市、书店、健身瑜伽、理发美容、美术展览、古筝演奏等,设置随处可达的交流与休闲空间。
  • 医院采用传统中医理念,
    医院采用传统中医理念,
  • 中式元素设计
    北侧主入口设计为高大灰空间,限定门诊主入口和住院次入口,顶部钢结构,装饰面板为深灰色铝板镶嵌前枫木色吊顶。
    门诊大厅为南北向通高共享空间,立面采用钢结构支撑夹片
    中式元素设计
北侧主入口设计为高大灰空间,限定门诊主入口和住院次入口,顶部钢结构,装饰面板为深灰色铝板镶嵌前枫木色吊顶。
门诊大厅为南北向通高共享空间,立面采用钢结构支撑夹片
  • 门诊楼外侧采用单元式幕墙系统,倾斜的前枫木色金属板镂刻树叶、经络的肌理,呼应中医院的文化主题,极具节奏感的造型使建筑造型造型丰富灵动,与西侧山体更好融合。
    
    门诊楼外侧采用单元式幕墙系统,倾斜的前枫木色金属板镂刻树叶、经络的肌理,呼应中医院的文化主题,极具节奏感的造型使建筑造型造型丰富灵动,与西侧山体更好融合。
  • 病房楼底部以玻璃幕墙为主,局部架空,内外渗透,通风景观良好;上部楼层强调横向线条,使建筑更为平缓,融于山体;外侧出挑灰色金属装饰板,镶嵌枫木色金属铝板,单元病房外侧为枫木色窗台、U型玻璃遮阳、金属格栅
    病房楼底部以玻璃幕墙为主,局部架空,内外渗透,通风景观良好;上部楼层强调横向线条,使建筑更为平缓,融于山体;外侧出挑灰色金属装饰板,镶嵌枫木色金属铝板,单元病房外侧为枫木色窗台、U型玻璃遮阳、金属格栅