筑医台科技有限公司

搜索
CHCC2026
筑医台资讯微信公众号
筑医台
微信扫一扫,获取更多资讯
封面图

浙江大学医学院附属口腔医院扩建项目: 蓝色与白色的自然融合

建筑设计 2022/12/28 14:18
受地形与容积率压力的控制,项目建筑体量顺应基地沿南北向呈矩形体量布置。一方面,严格控制与东侧现有建筑的间距,从而尽可能的减小新建筑体量对现有社区空间的压迫,另一方面,在满足相同面积需求的前提下,拉伸长度以控制总体高度,保证东侧住宅建筑的日照需求。 空间布局以东西向房间为主,为更好的应对地域日照特点,采用了整体的竖向遮阳板,成为本案标志性的外立面特征,简洁、大气,并且配合建筑形体的错动,随着观察者时间、位置的改变而使建筑立面产生流动性的光影变化,正是这样的流动界面,体现出口腔医院时尚创新的一面。 配合流动的形体变化,立面竖向遮阳构件采用纯洁的白色与蓝色渐变相结合的效果,蓝色与白色的自然融合,正体现出浙江大学附属口腔医院的专业性与时代性。 自然的形体流动,明快的色彩变化,既和谐回应了场地周边的各项设计条件,也体现了项目本身的建筑形态需求。

设计师陈志青、骆高俊 、毛淼、赵长青、张健君、华璟、胡俊勇

设计院浙江省建筑设计研究院

建设地点:杭州市

建筑面积:51649m2

封面图
  • 鸟瞰图
    鸟瞰图
  • 鸟瞰图
    鸟瞰图
  •  立面图
     立面图
  • 正立面
    正立面
  •  立面肌理
     立面肌理
  • 主入口与底层空间
    主入口与底层空间
  • 主入口与底层空间
    主入口与底层空间
  • 立面细部
    立面细部
  • 立面细部
    立面细部
  • 主入口近景
    主入口近景
  •  夜景
     夜景
  •  夜景
     夜景
  • 总平面图 
    总平面图
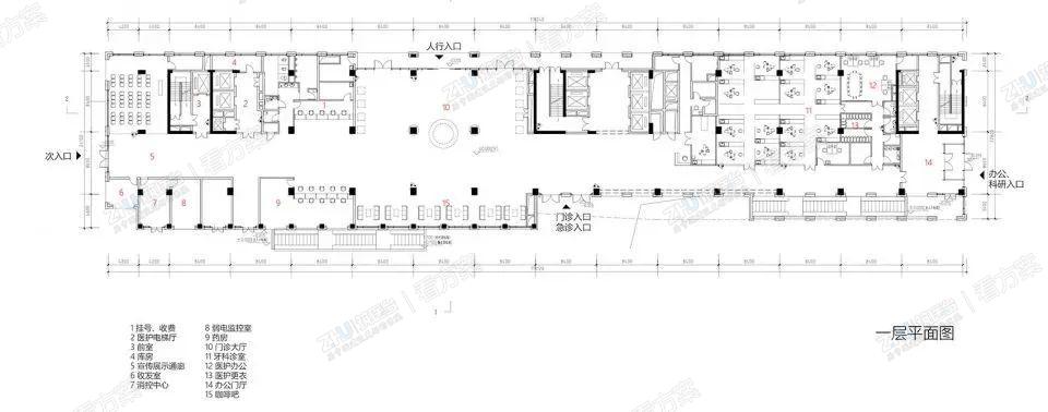
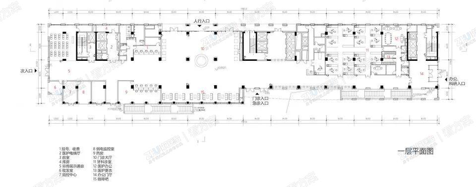
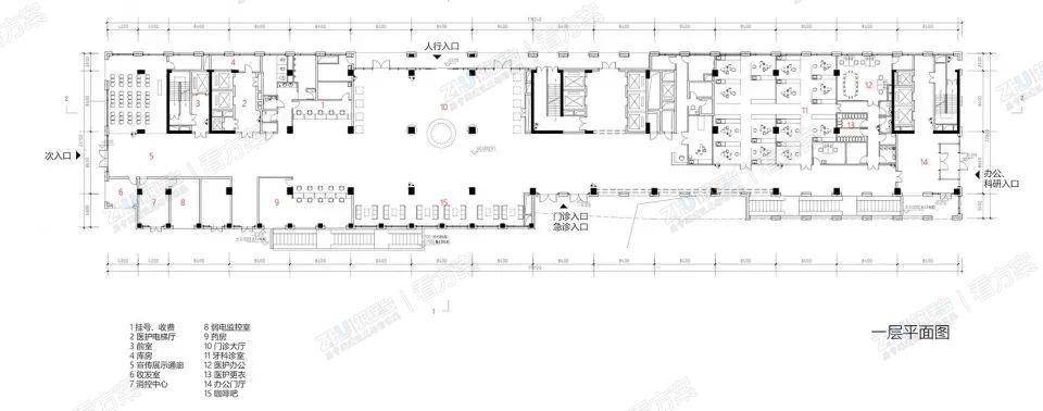
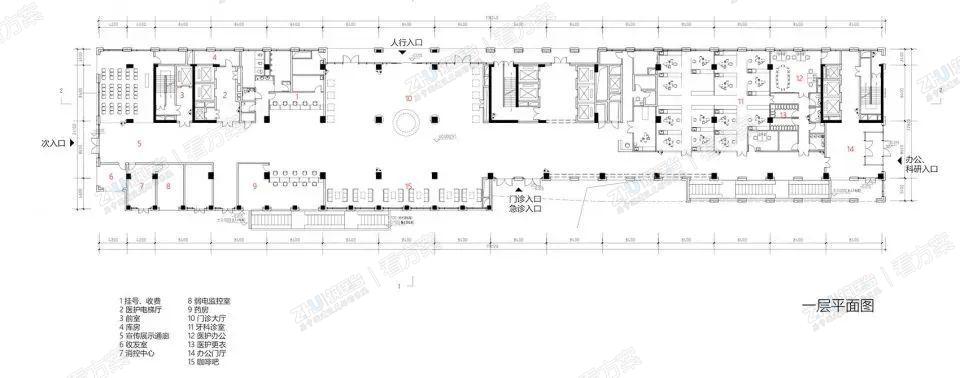
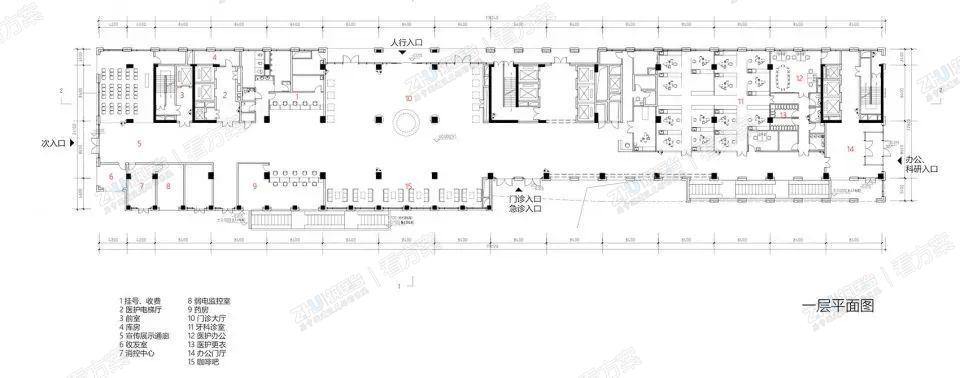
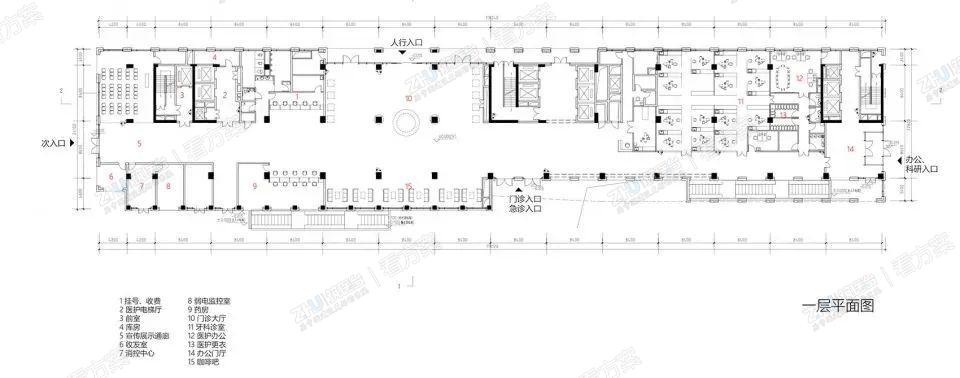
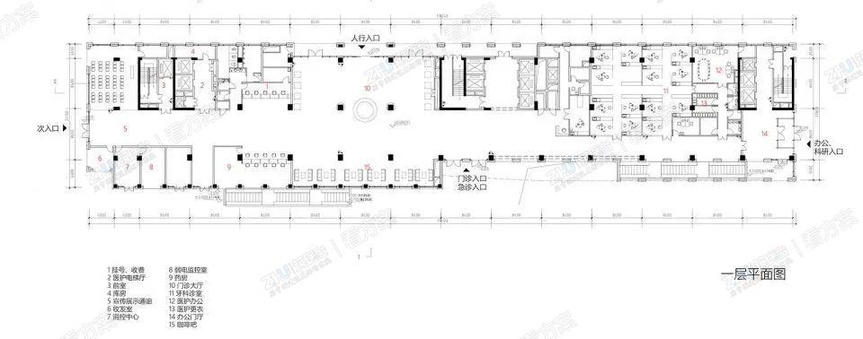
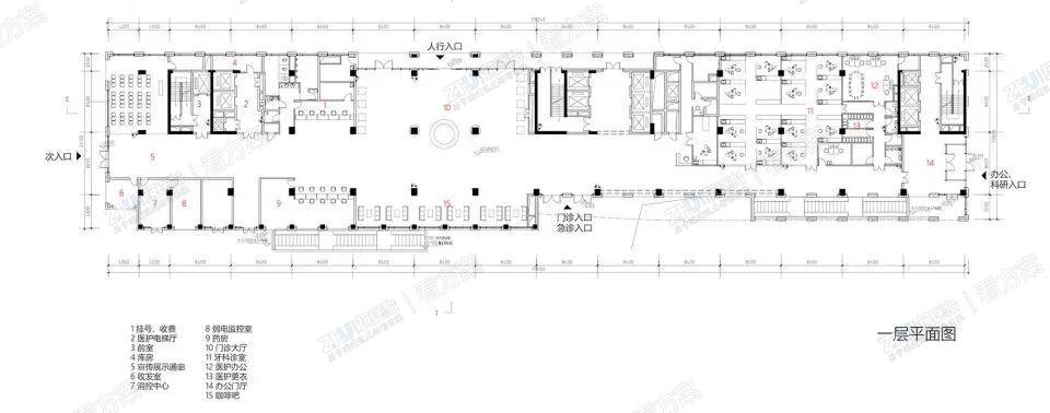
  • 一层平面图 
    一层平面图
  • 立面图
    立面图
  • 立面图
    立面图
全部评论 (0)