筑医台科技有限公司

搜索
CHCC2026
筑医台资讯微信公众号
筑医台
微信扫一扫,获取更多资讯
封面图

深圳市新华医院建设项目 | 复合型的医疗综合体

建筑设计 2019/08/23 11:33
深圳市新华医院位于深圳市龙华新区,新区大道与民宝路交汇处,用地200米内为地铁4号线红山站,东侧为龙光玖钻商业综合体,地理位置优越。项目用地面积57759㎡,规划设计床位2500床,总建筑面积503614㎡,其中地上22层,建筑面积335114㎡,地下四层,建筑面积168500㎡,建筑高度98米,总停车位2800辆。

设计师谷建

设计院中国中元国际工程有限公司医疗建筑设计研究院

建设地点:深圳市龙华新区,新区大道与民宝路交汇处,

用地面积:57759m2

建筑面积:503614m2

床位数:2500床

封面图
  • 鸟瞰图
    鸟瞰图
  • 门诊入口效果图
    门诊入口效果图
  • 医院次入口
    医院次入口
  • 医院全景图
    医院全景图
  • 设计理念1:建设大型城市综合体
    
    
    设计理念1:建设大型城市综合体
  • 与城市无缝接驳的交通
    
    与城市无缝接驳的交通
  • 创新立体人车分离系统
    
    创新立体人车分离系统
  • 多点的单向渠化
    多点的单向渠化
  • 机动车交通组织原则
    
    机动车交通组织原则
  • 立体交通组织
    立体交通组织
  • 设计理念2:作为医疗中枢的中央办理大厅
    
    设计理念2:作为医疗中枢的中央办理大厅
  • 中央办理大厅
    建筑内核的多功能复合大厅,集挂号、收费、取药、样本采集、功能检查、餐饮等功能为一体,成为大型医院的“中转换乘空间”,并由此去往医院的各个目的地。
    
    中央办理大厅
建筑内核的多功能复合大厅,集挂号、收费、取药、样本采集、功能检查、餐饮等功能为一体,成为大型医院的“中转换乘空间”,并由此去往医院的各个目的地。
  • 设计理念3:标准单元的模块化
    
    设计理念3:标准单元的模块化
  • 门诊模块化-集成的设计
    
    门诊模块化-集成的设计
  • 用地分析
    用地分析
  • 交通分析
    交通分析
  • 公共交通分析
    乘公交车是到达医院西侧首层空间主要方式
    二层步行平台连接红山站及周边场地,医院东侧二层空间将产生巨大人流量
    
    公共交通分析
乘公交车是到达医院西侧首层空间主要方式
二层步行平台连接红山站及周边场地,医院东侧二层空间将产生巨大人流量
  • 医院功能分区明确,人流量均衡
    2500床住院探视、陪护人员急诊病患
    12500日门诊人次,8750陪同
    1000名科研人员,700套学生公寓,100套专家公寓
    
    
    
    医院功能分区明确,人流量均衡
2500床住院探视、陪护人员急诊病患
12500日门诊人次,8750陪同
1000名科研人员,700套学生公寓,100套专家公寓
  • 功能分区明确,缩短医疗流线,提高救治效率
    
    功能分区明确,缩短医疗流线,提高救治效率
  • 东侧商业建筑均采用回字围合布局
    
    东侧商业建筑均采用回字围合布局
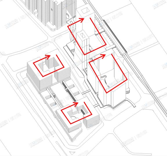
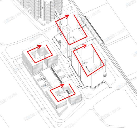
  • 打开建筑,开辟风道,优化内部微气候
    
    
    打开建筑,开辟风道,优化内部微气候
  • 各功能分区剖面图
    车辆落客区位于地下一层,地下二、三、四层以地下停车库为主
    
    各功能分区剖面图
车辆落客区位于地下一层,地下二、三、四层以地下停车库为主
  • 医院总平面图
    医院总平面图
  • 功能分析
    
    功能分析
  • 车行流线
    
    车行流线
  • 人行流线
    
    人行流线
  • 消防环道
    
    消防环道
  • 消防扑救面
    
    消防扑救面
  • 中轴展开的空间序列
    中轴展开的空间序列
  • 以中央办理大厅为核心的医疗流程
    以中央办理大厅为核心的医疗流程
  • 地下四层停车场平面图
    地下四层停车场平面图
  • 地下一层平面图
    地下一层平面图
  • 一层平面图
    一层平面图
  • 二层平面图
    二层平面图
  • 三层平面图
    三层平面图
  • 停机坪抢救流线
    
    停机坪抢救流线
  • 手术部与各科室的联系
    
    手术部与各科室的联系
  • 中轴展开的景观序列
    
    中轴展开的景观序列
  • 被动式节能——风环境分析
    被动式节能——风环境分析
  • 多层次、花园式疗愈环境
    
    多层次、花园式疗愈环境
  • 屋顶绿化效果图
    屋顶绿化效果图
  • 中央办理大厅空间的灵活性
    空间灵活的中央办理大厅为患者及家属提供休息等候休闲的空间,为患者带来舒适感受。
    
    中央办理大厅空间的灵活性
空间灵活的中央办理大厅为患者及家属提供休息等候休闲的空间,为患者带来舒适感受。