筑医台科技有限公司

搜索
CHCC2026
筑医台资讯微信公众号
筑医台
微信扫一扫,获取更多资讯
封面图

安康市中医医院 | “凹”字形的医院建筑

建筑设计 2019/10/23 10:57
安康市中医医院位于安康市主干道巴山东路,本次规划是在现有医院基础上的一次改建和扩建工程,是对安康市中医医院的一次重新整合。医院原有1100床,规划扩建500床,规划后共计1600床。

设计师张蕊、廖茂志

设计院中联西北工程设计研究院有限公司

建设地点:陕西省安康市汉滨区

用地面积:28907m2

建筑面积:158310m2

床位数:1600床

封面图
  • 安康市中医医院鸟瞰图一
    安康市中医医院鸟瞰图一
  • 安康市中医医院鸟瞰图二
    安康市中医医院鸟瞰图二
  • 安康市中医医院沿街透视图一
    安康市中医医院沿街透视图一
  • 安康市中医医院沿街透视图二
    安康市中医医院沿街透视图二
  • 安康市中医医院总平面图
    安康市中医医院总平面图
  • 安康市中医医院西立面图
    
    安康市中医医院西立面图
  • 安康市中医医院南立面图
    
    安康市中医医院南立面图
  • 安康市中医医院东立面图
    
    安康市中医医院东立面图
  • 医院立体功能分析图
    
    医院立体功能分析图
  • 医院急诊、门诊大厅等功能分区示意图
    医院急诊、门诊大厅等功能分区示意图
  • 医院门诊、检验科功能分区示意图
    
    医院门诊、检验科功能分区示意图
  • 医院门诊、专科医院和老年医院功能分区示意图
    医院门诊、专科医院和老年医院功能分区示意图
  • 医院检验科与内窥镜科功能分区示意图
    医院检验科与内窥镜科功能分区示意图
  • 医院医技用房、体检中心、中心供应、档案室等功能分区示意图
    医院医技用房、体检中心、中心供应、档案室等功能分区示意图
  • 医院出入口分析图
    
    医院出入口分析图
  • 医院建筑单体出入口分析图
    
    医院建筑单体出入口分析图
  • 医院道路交通分析图
    
    医院道路交通分析图
  • 医院医疗流线分析图
    
    医院医疗流线分析图
  • 医院医疗主街流线分析图
    
    医院医疗主街流线分析图
  • 医院景观节点分析图
    
    医院景观节点分析图
  • 医院消防流线分析图
    
    医院消防流线分析图
  • 医院空间分析图
    
    医院空间分析图
  • 医院地下二层平面图
    医院地下二层平面图
  • 医院地下一层平面图
    医院地下一层平面图
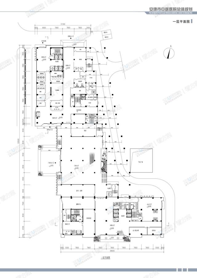
  • 医院一层平面图
    医院一层平面图
  • 医院二层平面图
    医院二层平面图
  • 医院三层平面图
    医院三层平面图
  • 医院四层平面图
    医院四层平面图
  • 医院五层平面图
    医院五层平面图
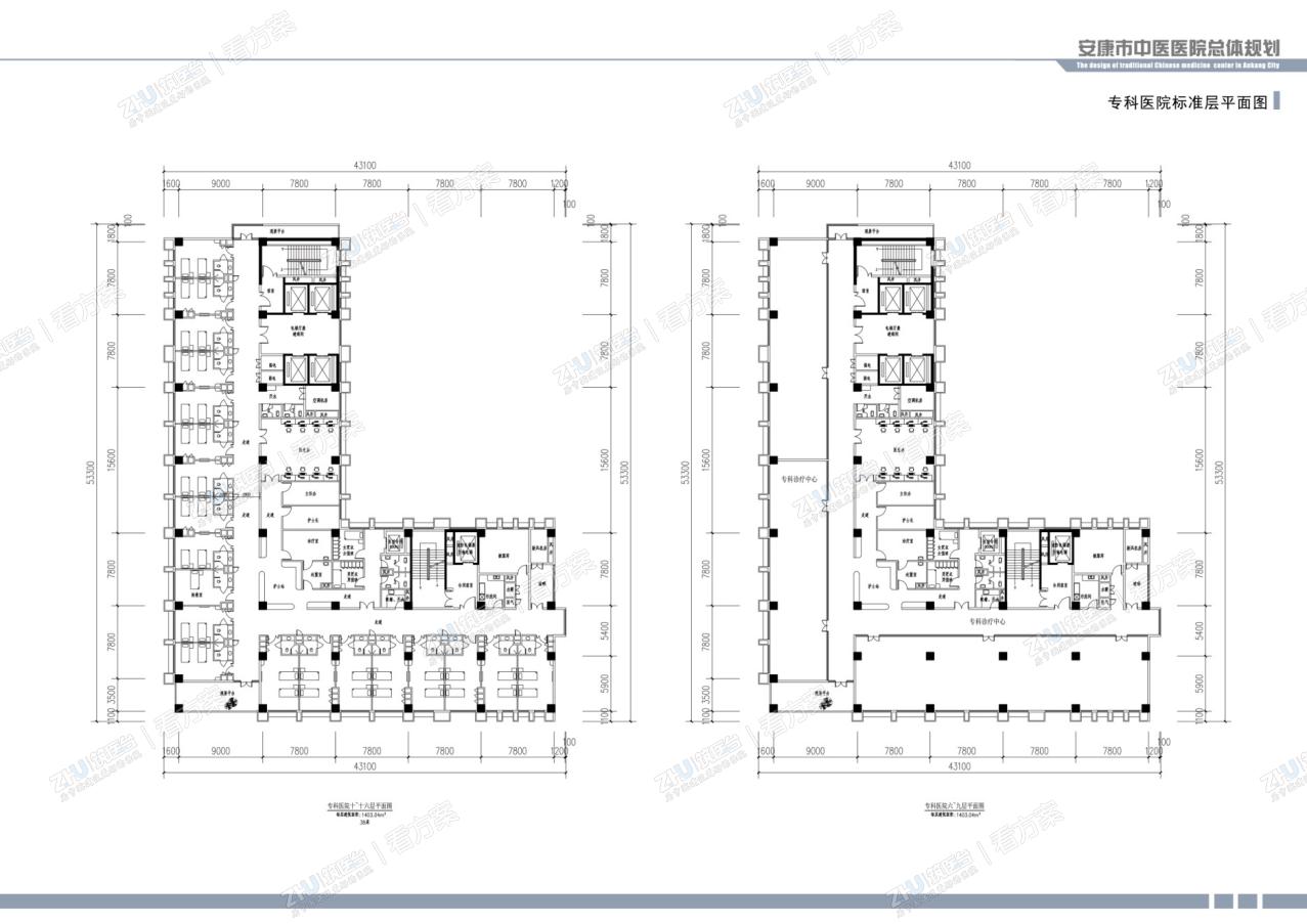
  • 专科病房楼标准层平面图
    
    专科病房楼标准层平面图
  • 老年病病房楼标准层平面图
    
    老年病病房楼标准层平面图
全部评论 (0)