筑医台科技有限公司

搜索
CHCC2026
筑医台资讯微信公众号
筑医台
微信扫一扫,获取更多资讯
封面图

许昌市中心医院新院区 | 天人合一,孕育希望

建筑设计 2019/09/25 11:06
许昌中心医院新建院区工程设计项目位于许昌市东城区魏文路以东,清苑路以南,德星路以西,文轩路以北。 项目红线内占地面积171149㎡(约256.7亩),绿线内占地面积153363㎡(约230亩)。 项目总建筑面积289763 ㎡,其中地上建筑面积196548㎡、地下建筑面积93215㎡。

设计师宋学贤、王晶冰、袁恺星、苏黎明

设计院北京五合国际工程设计顾问有限公司

建设地点:许昌市东城区魏文路以东,清苑路以南,德星路以西,文轩路以北。

用地面积:171149m2

建筑面积:289763m2

床位数:2000床

封面图
  • 许昌市中心医院新院区正视图
    许昌市中心医院新院区正视图
  • 许昌市中心医院新院区夜景鸟瞰图
    许昌市中心医院新院区夜景鸟瞰图
  • 许昌市中心医院新院区全景图
    许昌市中心医院新院区全景图
  • 许昌市中心医院新院区全景图
    许昌市中心医院新院区全景图
  • 许昌市中心医院新院区主视图
    许昌市中心医院新院区主视图
  • 许昌市中心医院新院区正视图
    许昌市中心医院新院区正视图
  •  方案灵感来源。借用传统文化的“坤卦”厚德载物——大地之德来承托医生救死扶伤的光辉形象。因此命名为“Healing Land(坤愈园)”。
     方案灵感来源。借用传统文化的“坤卦”厚德载物——大地之德来承托医生救死扶伤的光辉形象。因此命名为“Healing Land(坤愈园)”。
  • 在院区规划上,利用“坤”卦象形“三”依次排开门诊、医技、病房楼三段式;“坤”即象征土地与繁荣;将三段式贯以环形连廊,“圆”即象征天空与希望。
    在院区规划上,利用“坤”卦象形“三”依次排开门诊、医技、病房楼三段式;“坤”即象征土地与繁荣;将三段式贯以环形连廊,“圆”即象征天空与希望。
  • “圆”即象征天空与希望。曲线的主街代表水和河流象征河南与其他城市连结一心,功能体块的高低起伏代表叠峦起伏的山脉。因此,坤愈园是天与地的凝聚之境,孕育万物的自然之源。
    “圆”即象征天空与希望。曲线的主街代表水和河流象征河南与其他城市连结一心,功能体块的高低起伏代表叠峦起伏的山脉。因此,坤愈园是天与地的凝聚之境,孕育万物的自然之源。
  •  在医院建筑总体设计中,从形态角度来看,大致分为集中式、半集中式、分散式。本案结合许昌市当地特有的城市结构肌理及地块特点,采用高效的集中式与院落式相结合的布局方式。
     在医院建筑总体设计中,从形态角度来看,大致分为集中式、半集中式、分散式。本案结合许昌市当地特有的城市结构肌理及地块特点,采用高效的集中式与院落式相结合的布局方式。
  • 医院剖面图
    医院剖面图
  • 医院地下二层平面图
    医院地下二层平面图
  • 医院地下二层平面图
    医院地下二层平面图
  • 医院一层平面图
    医院一层平面图
  • 医院二层平面图
    医院二层平面图
  • 医院三层平面图
    医院三层平面图
  • 医院四层平面图
    医院四层平面图
  • 医院五层平面图
    医院五层平面图
  • 医院六~十层平面图
    医院六~十层平面图
  • 医院十一~十二平面图
    医院十一~十二平面图
  • 医院手术部平面流线分析图
    
    医院手术部平面流线分析图
  • 医院ICU、中心供应室平面流线分析图
    
    医院ICU、中心供应室平面流线分析图
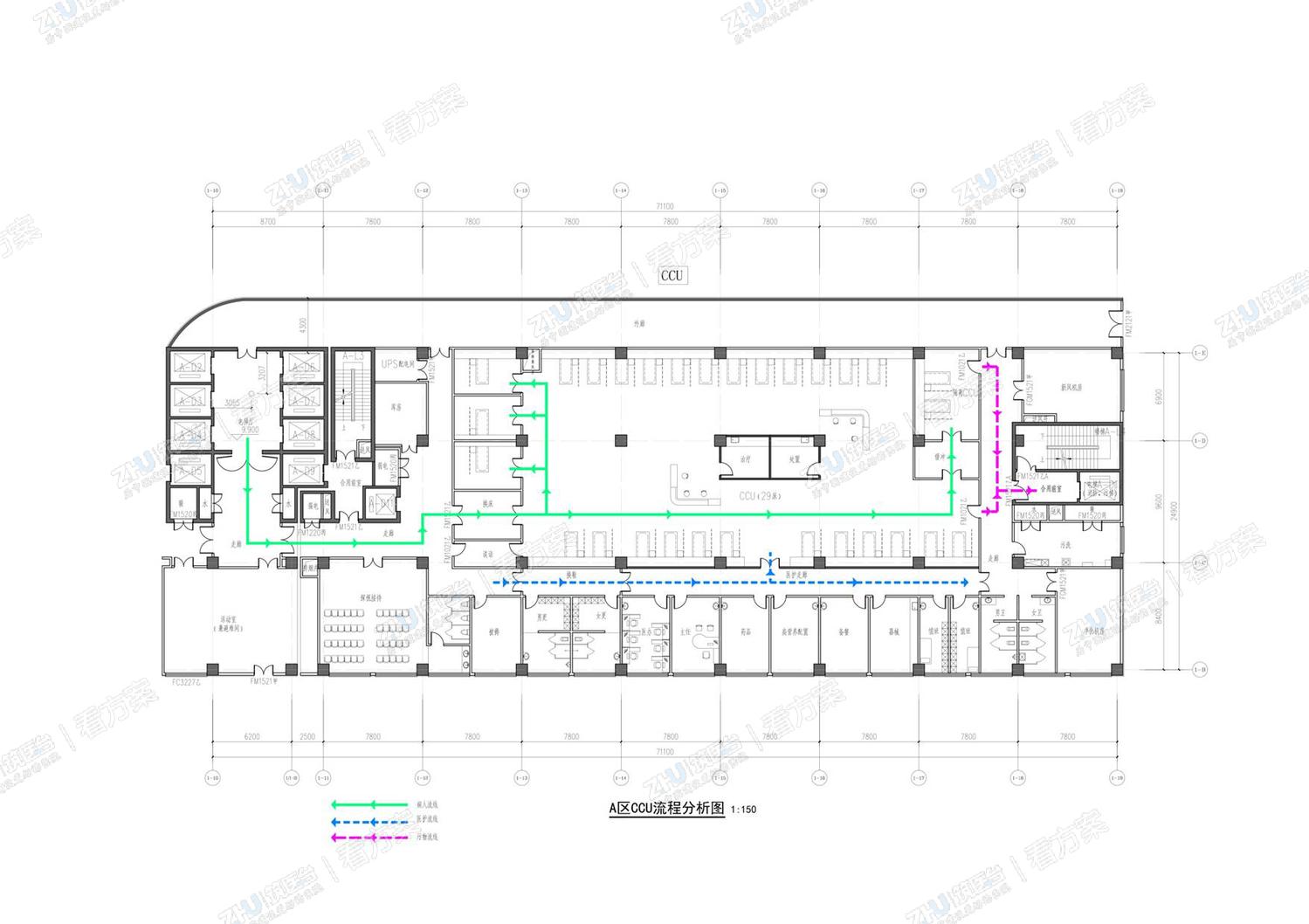
  • 医院CCU平面流线分析图
    
    医院CCU平面流线分析图
  • 标准护理单元平面流线分析图
    
    标准护理单元平面流线分析图
  • 医院各空间联系平面图
    医院各空间联系平面图
  • 医院功能分析图
    医院功能分析图
  • 医院光照、通风设计分析
    医院光照、通风设计分析
  • 绿色屋顶和雨水收集设计分析
    绿色屋顶和雨水收集设计分析
  • 医院太阳能节能设计分析
    医院太阳能节能设计分析
全部评论 (0)