筑医台科技有限公司

搜索
CHCC2026
筑医台资讯微信公众号
筑医台
微信扫一扫,获取更多资讯
封面图

北京儿童医院顺义妇幼医院 | 简洁活泼的医院建筑形象

建筑设计 2019/10/29 09:39
总平面布局充分考虑各种因素,设计结合功能需求,采用高低错落、疏密相宜、明快舒展、既分散独立又相对集中的布局方式,在保证功能实用的同时,寻求空间上的变化,现代、简洁、活泼的建筑形象,丰富的绿化园林景观,活跃着区域空间氛围,结合水平立面划分,表达着洁净、现代的医院形象。

设计师刘炎杰、何嘉欣、朱昀

设计院中国中轻国际工程有限公司

建设地点:北京市顺义区,北临顺平路,东至顺康路,西至石园东路,南面毗邻顺义区老年大学

用地面积:59201m2

建筑面积:121383m2

封面图
  • 北京儿童医院顺义妇幼医院鸟瞰效果图
    北京儿童医院顺义妇幼医院鸟瞰效果图
  • 北京儿童医院顺义妇幼医院正视效果图
    北京儿童医院顺义妇幼医院正视效果图
  • 北京儿童医院顺义妇幼医院建设项目区位图
    
    北京儿童医院顺义妇幼医院建设项目区位图
  • 北京儿童医院顺义妇幼医院总平面图
    
    北京儿童医院顺义妇幼医院总平面图
  • 医院功能分析一
    
    
    医院功能分析一
  • 医院功能分析二
    医院功能分析二
  • 医院功能分析三
    医院功能分析三
  • 医院总体规划分析
    
    医院总体规划分析
  • 医院交通分析:医院一期的主要出入口设置于顺康路上,二期及三期的主要出入口设置在民富路上,而将医院的住院部出入口及污物出口、后勤出入口等设置于顺和路上。
    医院交通分析:医院一期的主要出入口设置于顺康路上,二期及三期的主要出入口设置在民富路上,而将医院的住院部出入口及污物出口、后勤出入口等设置于顺和路上。
  • 医院绿化分析
    
    医院绿化分析
  • 医院景观意向
    
    医院景观意向
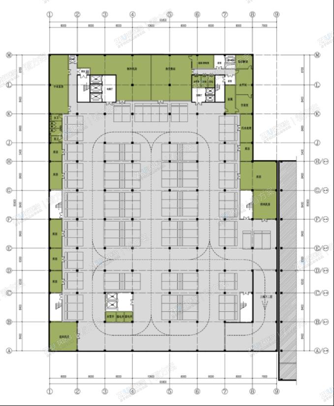
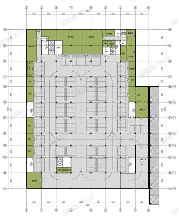
  • 医院地下三层平面图
    
    医院地下三层平面图
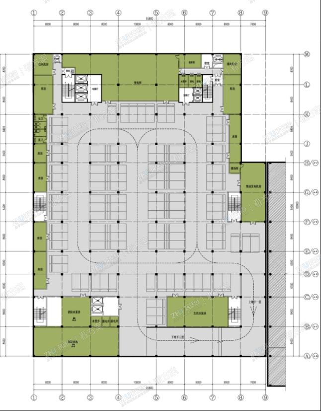
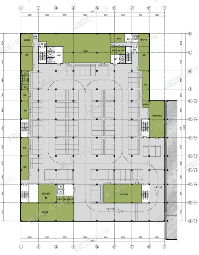
  • 医院地下二层平面图
    
    医院地下二层平面图
  • 医院地下一层平面图
    
    医院地下一层平面图
  • 医院首层平面图
    
    医院首层平面图
  • 医院二层平面图
    
    医院二层平面图
  • 医院三层平面图
    医院三层平面图
  • 医院四层平面图
    
    医院四层平面图
  • 医院标准层平面图
    
    医院标准层平面图
  • 医院剖面图
    医院剖面图
全部评论 (0)