
邛崃市中医医院位于古称临邛的四川省邛崃市,建城迄今已有2300多年历史,是四川最早的四大古城之一。邛崃市中医医院是一个800床位的、总建筑面积9.3万平方米的新建大型中医医院。







©魏刚
用全新的时尚的中医医院设计新模式诠释深邃的、辨证的、抽象的、奇幻的中医科学内涵与文化精神。

与周边城市环境完美融合 ©魏刚

天人合一、东方韵味 ©魏刚

与环境共生 ©魏刚
提起中医医院建筑,“新中式”风格往往成为必然选择,似乎唯有传统建筑形式才能诠释中医的悠久历史与独特气质。传统建筑形式固然能体现一些中国文化的历史感,但却与现代医疗建筑的实际发展需要不相吻合,也不足以准确恰当地表达中医的奇幻深邃之美。



兼具东方韵味与现代时尚 ©魏刚
中医,不仅是中国传统文化中的瑰宝,更是一门面向未来、致力于用独特的视角解决现代人健康问题的真正科学,蕴含着东方智慧与深刻哲理。
因此,中医医院的建筑设计不应仅仅停留在对历史传统建筑的回溯和符号的堆砌,更应大胆地用现代和未来的方式展现中医的科学性和哲学性,彰显中医接近生命本源的纯粹之美、无限至简的艺术之美,以及天人合一的哲学思辨的魅力。
同时作为邛崃市重要的大型医疗设施,这座中医医院的建设对城市片区的振兴有着重大的拉动作用,其现代时尚、面向未来的建筑风格,也与城市崭新的建设进程完美呼应。

既传统又时尚的建筑语言 ©魏刚


虚实相生、阴阳转换的空间趣味 ©魏刚

饱含生命力的空间形态 ©魏刚



中国文化意境的院落空间 ©魏刚
建筑师希望在这次中医医院的设计中,探索一种全新的时尚的中医医院空间模式。这种中医医院的新模式不仅聚焦于建筑形态的创新表达,更注重中医医院空间氛围的现代营造。
设计中,摒弃传统中式建筑中过于强调轴线、符号与复古的建筑形式,转而以医疗建筑的科学性为核心,将空间的人性化与舒适度放在首位,精心布局高效流畅宜人的就医流线,让人们在舒适的就医过程中自然领略中医之美与古老中医的现代魅力。
串接门诊、医技、住院三个板块的医疗街,通过中国园林的塑造手法,将超市、书报亭、景观扶梯等休闲类功能与景观相融合,融入虚实阴阳的空间转换之中,带来自然轻松的现代医疗康养空间体验。
通过以中医独有的医学性、科学性和哲学性作为设计的核心路径与目标,生动诠释中医辩证的思想与天人合一的智慧。建筑师认为,中医医院的设计不能一味复古,而可以有所创新和发展,也可以体现现代与时尚。

流畅简洁、对话天地的门诊入口大厅 ©魏刚

流畅简洁的室内共享空间 ©魏刚

舒适流畅的医疗街空间 ©魏刚
在院落空间的设计上,巧妙融入中国文化的独特氛围与意境。阴阳相生、虚实相间、禅意流淌的空间,带来中医传统文化的趣味、韵味和意味,探索“既现代又中国”的设计手法。室内空间明快简洁、舒适流畅,体现着现代医院时尚性与中国传统文化性的结合,用全新的视角诠释中医的独特魅力。

暮色中的中医医院 ©魏刚
建筑师希望邛崃市中医医院以未来的科学视角面对传统的中华医学,以时尚的优雅的流动空间舒缓现代人病痛的焦躁,以曲直虚实之间的抽象空间展现朦胧思辨的空间趣味,叩响深邃的中医哲学思想之门。
项目图纸

总平面图 ©天津大学设计总院·顾志宏工作室

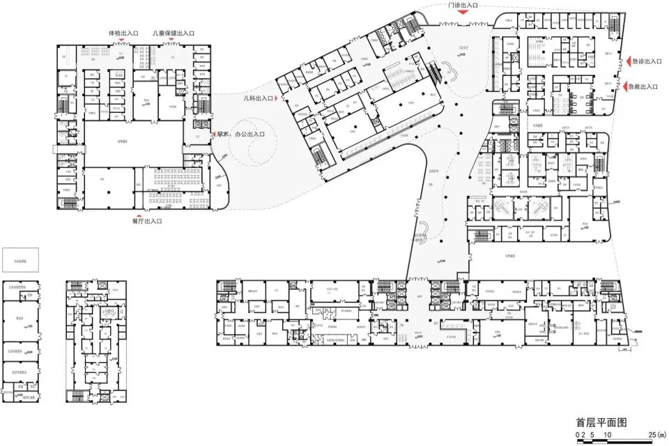
首层平面图 ©天津大学设计总院·顾志宏工作室

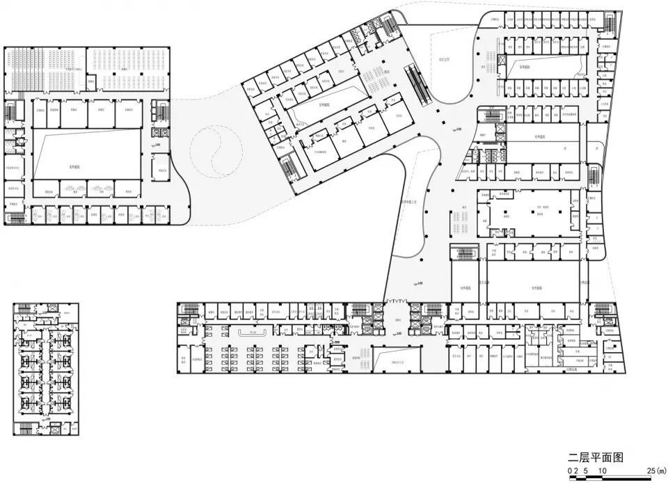
二层平面图 ©天津大学设计总院·顾志宏工作室

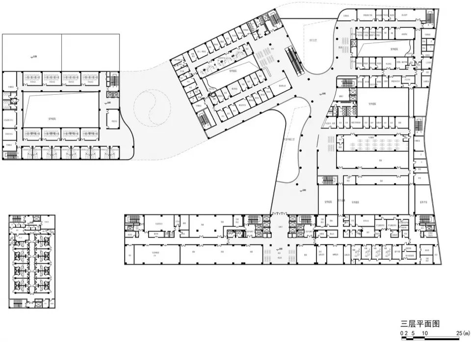
三层平面图 ©天津大学设计总院·顾志宏工作室

四层平面图 ©天津大学设计总院·顾志宏工作室

较高层平面图 ©天津大学设计总院·顾志宏工作室
项目信息
项目名称:邛崃市中医医院
项目类型:医疗建筑
设计方:天津大学设计总院·顾志宏工作室
项目设计&完成年份:2020-2024年
总负责人:谌谦
主创建筑师:顾志宏
工程主持人:刘毓杰、宋军勇
方案设计团队:天津大学设计总院·顾志宏工作室
施工图设计团队:天津大学设计总院·设计一院
项目地址:四川省成都市
建筑面积:约9.3万平方米
摄影版权:魏刚

>