• 青岛市平度中心医院 | 一廊串两区,绿轴连东西

    2020/01/02 10:59
    医院一期鸟瞰透视图
    
  • 青岛市平度中心医院 | 一廊串两区,绿轴连东西

    2020/01/02 10:59
    医院二期鸟瞰透视图
  • 青岛市平度中心医院 | 一廊串两区,绿轴连东西

    2020/01/02 10:59
    医院西向鸟瞰透视图
    
  • 青岛市平度中心医院 | 一廊串两区,绿轴连东西

    2020/01/02 10:59
    医院主入口透视图
    
  • 青岛市平度中心医院 | 一廊串两区,绿轴连东西

    2020/01/02 10:59
    医院屋顶花园透视图
  • 青岛市平度中心医院 | 一廊串两区,绿轴连东西

    2020/01/02 10:59
    医院二期住院庭院透视图
    
  • 青岛市平度中心医院 | 一廊串两区,绿轴连东西

    2020/01/02 11:00
    医院VIP入口大厅透视图
    
  • 青岛市平度中心医院 | 一廊串两区,绿轴连东西

    2020/01/02 11:00
    医院地下落客系统透视图
    
  • 青岛市平度中心医院 | 一廊串两区,绿轴连东西

    2020/01/02 11:00
    医院规划总平面图
    
  • 青岛市平度中心医院 | 一廊串两区,绿轴连东西

    2020/01/02 11:00
    医院地下一层平面图
    
  • 青岛市平度中心医院 | 一廊串两区,绿轴连东西

    2020/01/02 11:00
    医院一层平面图
    
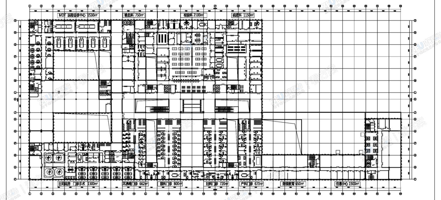
  • 青岛市平度中心医院 | 一廊串两区,绿轴连东西

    2020/01/02 11:00
    医院二层平面图
    
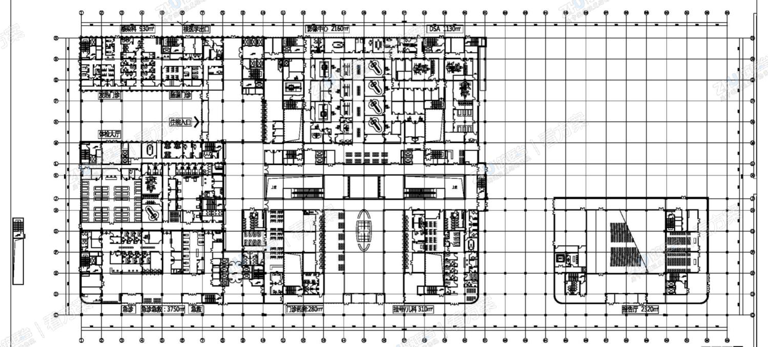
  • 青岛市平度中心医院 | 一廊串两区,绿轴连东西

    2020/01/02 11:00
    医院三层平面图
    
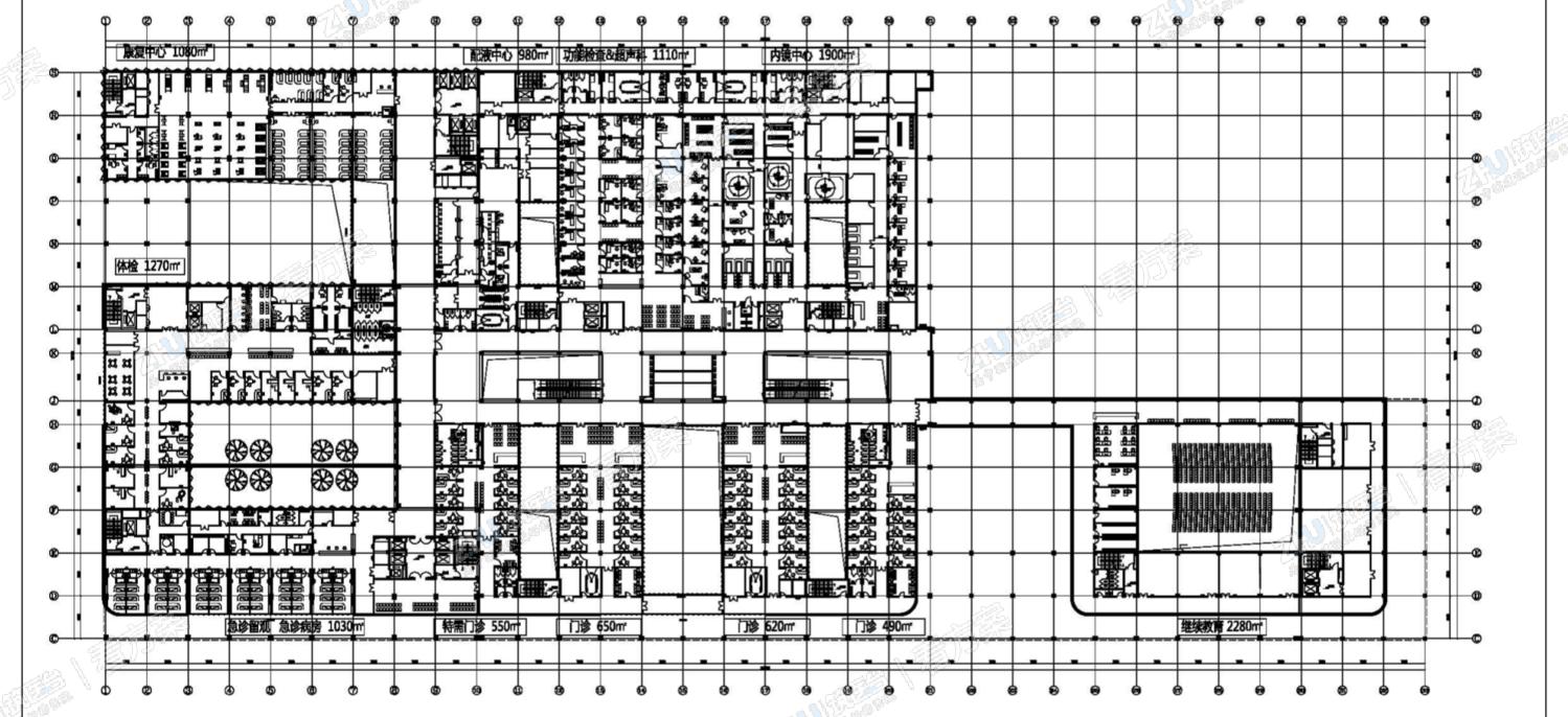
  • 青岛市平度中心医院 | 一廊串两区,绿轴连东西

    2020/01/02 11:00
    医院四层平面图
    
  • 青岛市平度中心医院 | 一廊串两区,绿轴连东西

    2020/01/02 11:00
    医院五层平面图
    
  • 青岛市平度中心医院 | 一廊串两区,绿轴连东西

    2020/01/02 11:00
    医院六层平面图
    
  • 青岛市平度中心医院 | 一廊串两区,绿轴连东西

    2020/01/02 11:00
    医院七层平面图
    
  • 青岛市平度中心医院 | 一廊串两区,绿轴连东西

    2020/01/02 11:00
    医院八到十四层平面图
    
  • 青岛市平度中心医院 | 一廊串两区,绿轴连东西

    2020/01/02 11:00
    医院西立面图
    
  • 青岛市平度中心医院 | 一廊串两区,绿轴连东西

    2020/01/02 11:00
    医院东立面图
    
  • 青岛市平度中心医院 | 一廊串两区,绿轴连东西

    2020/01/02 11:00
    医院交通组织分析图一
    
  • 青岛市平度中心医院 | 一廊串两区,绿轴连东西

    2020/01/02 11:00
    医院交通组织分析图二
  • 青岛市平度中心医院 | 一廊串两区,绿轴连东西

    2020/01/02 11:00
    医院功能空间分析图一
    
  • 青岛市平度中心医院 | 一廊串两区,绿轴连东西

    2020/01/02 11:00
    医院功能空间分析图二
    
80%
1/1