筑医台科技有限公司

搜索
CHCC2026
筑医台资讯微信公众号
筑医台
微信扫一扫,获取更多资讯
封面图

柳州市工人医院总院 | “医”脉相承,打造桂中卓越医学中心

建筑设计 2019/12/05 12:00
柳州市工人医院(以下简称“柳工”)创建于1933年,距今已有83年历史,是西南地区最大工人医院,历史上一直扮演着柳州人最重要的生命卫士之一,成为几代柳州人民的不可磨灭的记忆。新时代,“柳工”锐意进取,稳步向前。技术在革新,规模也不断在扩展。 本项目是柳州市工人医院总院整体搬迁项目,新的扩展基于“柳工”办院宗旨:关爱生命,呵护健康;符合“柳工”基本的价值取向:仁爱、求实、创新、奉献;满足柳工担当的功能与任务:医疗、预防、保健、康复、科研及教学;进一步打造桂中卓越的医学中心。

设计师曹剑

设计院华蓝设计(集团)有限公司

建设地点:广西壮族自治区柳州市柳南区

建筑面积:30.52万m2

床位数:1500床

封面图
  • 医院鸟瞰图
    医院鸟瞰图
  • 医院夜景鸟瞰图
    
    医院夜景鸟瞰图
  • 医院建筑透视图
    
    医院建筑透视图
  • 医院室外庭院效果图
    
    医院室外庭院效果图
  • 医院室内庭院效果图
    医院室内庭院效果图
  • 医院室内大堂效果图
    医院室内大堂效果图
  • 医院总平面图
    医院总平面图
  • 医院功能分区分析图
    
    医院功能分区分析图
  • 医院出入口示意图
    
    医院出入口示意图
  • 医院出入口示意图
    
    医院出入口示意图
  • 医院消防分析图
    
    医院消防分析图
  • 医院竖向设计图
    
    医院竖向设计图
  • 医院日照分析图
    
    医院日照分析图
  • 医院一层功能分析图
    
    医院一层功能分析图
  • 医院二层功能分析图
    
    医院二层功能分析图
  • 医院三层功能分析图
    医院三层功能分析图
  • 医院四层功能分析图
    
    
    医院四层功能分析图
  • 医院五层功能分析图
    
    医院五层功能分析图
  • 医院六层功能分析图
    
    医院六层功能分析图
  • 医院七~十五层功能分析图
    医院七~十五层功能分析图
  • 医院屋面层功能分析图
    
    医院屋面层功能分析图
  • 医院西、北向立面图
    医院西、北向立面图
  • 医院东、南向立面图
    医院东、南向立面图
  • 医院周边环境分析
    
    
    医院周边环境分析
  • 医院规划设计条件示意图
    医院规划设计条件示意图
  • 医院设计理念:充分研究老院区的诊治流程、空间布局及造型元素,力求新院区的设计由内而外的延续老院区的传统文脉。
    医院设计理念:充分研究老院区的诊治流程、空间布局及造型元素,力求新院区的设计由内而外的延续老院区的传统文脉。
  • 设计亮点:提炼特点,树立形象;整合造型元素,传承历史文脉。
    
    设计亮点:提炼特点,树立形象;整合造型元素,传承历史文脉。
  • 设计亮点:延续、完善功能目标;针对性研究,精准化设计。
    设计亮点:延续、完善功能目标;针对性研究,精准化设计。
  • 设计亮点:以人为本,“品”字形布局,直接高效;重点科室,“中心”成区。
    设计亮点:以人为本,“品”字形布局,直接高效;重点科室,“中心”成区。
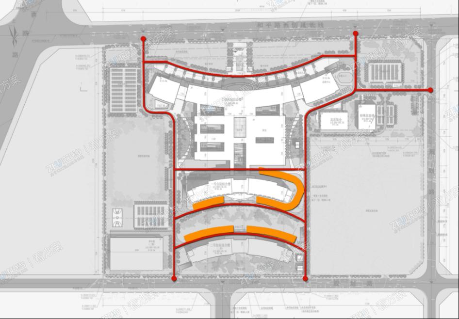
  • 设计亮点:流线快捷,分区规划、车道分级、单向组织;出入口定位明确,快捷组织交通;人车分流、洁污分流;“街巷式”组织、“T+T”、“T+U”式分流
    设计亮点:流线快捷,分区规划、车道分级、单向组织;出入口定位明确,快捷组织交通;人车分流、洁污分流;“街巷式”组织、“T+T”、“T+U”式分流
  • 模块化设计:模块分布的位置各自集中,且每个模块皆配备相应舒适交通和卫生间等,为科室的调整和医院的发展提供可能性。
    模块化设计:模块分布的位置各自集中,且每个模块皆配备相应舒适交通和卫生间等,为科室的调整和医院的发展提供可能性。
全部评论 (2)
  • 鸿业家具集团 :医院家具类,医院项目招投标!广东鸿业家具集团-耀江医疗家具 欢迎联系莫生15382730010

    22-03-18 16:58  
  • 建筑结构补强加固13520205853 :专业结构补强加固资质和施工队伍,承接各地建筑结构补强粘贴碳纤维加固、粘钢加固。13520205853

    20-12-16 07:28